メインステージ北千住VII 4階 | 1LDK | 15.8万円
| 賃料 | 15.8万円 | 管理費・共益費 | 2万円 |
|---|---|---|---|
| 敷金/礼金 | なし / なし | 専有面積 | 40.96m² |
| 間取り | 1LDK | 階建 | 4階/13階建 |
メインステージ北千住VIIの詳細
| 賃料 | 15.8万円 | 管理費・共益費 | 2万円 |
|---|---|---|---|
| 敷金/保証金 | なし / | 礼金/償却・敷引 | なし / |
| 更新料 | 1.5ヶ月 | フリーレント | なし |
| その他費用 |
鍵交換費用:27,900円 退去時清掃代:55,000円 AMLクラブサポート費用:16,500円 エアコン清掃費:16,500円 |
||
| 所在地 | 東京都足立区柳原1丁目 | ||
| 交通 |
常磐線「北千住」 徒歩13分 東武伊勢崎・大師線「牛田(東京)」 徒歩8分 京成電鉄本線「京成関屋」 徒歩8分 |
||
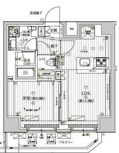
| 間取り | 1LDK | 間取り内訳 |
洋室 6 畳 LDK 11.3 畳 |
| 専有面積 | 40.96m² | バルコニー面積 | |
| 築年月(築年数) | 2022年08月(築3年) | 方位 | 西 |
| 建物構造 | RC(鉄筋コンクリート) | 所在階/階建 | 4階/13階建 |
| 総戸数 | 84戸 | 駐車場 | |
| 保険料 | 要 20,000円 2年 | 契約期間 | 2年間 |
| 引渡 | 2026年01月 | ||
| 現況(予定年月) | 居住中 | ||
| 管理 | |||
| 設備・条件 | BSアンテナ、CSアンテナ、オートロック、TVドアホン、防犯カメラ、ディンプルキー、ダブルロックキー、宅配ボックス、駐輪場、エレベータ、デザイナーズ、2階以上、システムキッチン、バス・トイレ別、温水洗浄便座、浴室乾燥機、追い焚き、室内洗濯機置き場、洗濯機置き場有、フローリング、24時間換気システム、エアコン、シューズインクローゼット、バルコニー、分譲賃貸、礼金なし、敷金なし、ペット相談 | ||
| 備考 | 保証人代行:必須/賃料と管理費の50%~ | ||
| 周辺施設 |
グルメシティ千住曙町店(距離:514m) ダイエー千住曙町店(距離:550m) セブンイレブン 足立千住曙町店(距離:560m) ファミリーマート 千住曙町店(距離:607m) |
||
| 物件番号 | 46327 | 取引態様 | 仲介 |
| 情報更新日 | 2025年12月29日 | ||
| 次回更新予定日 | 情報更新日より15日以内 | ||



















COMMENTS FROM STAFFメインステージ北千住VIIの
担当者コメント
東京の1人暮らしはアセットナビへ!自社ブランドマンションをはじめ、賃貸物件を数多くご紹介可能です。こちらの物件は、分譲賃貸マンションで設備が充実しております。オートロックシステムでセキュリティもバッチリです。