ハッピーノ I 2階 | 1LDK | 9.4万円
| 賃料 | 9.4万円 | 管理費・共益費 | 0.35万円 |
|---|---|---|---|
| 敷金/礼金 | なし / 141,000円 | 専有面積 | 42.47m² |
| 間取り | 1LDK | 階建 | 2階/2階建 |
ハッピーノ Iの詳細
| 賃料 | 9.4万円 | 管理費・共益費 | 0.35万円 |
|---|---|---|---|
| 敷金/保証金 | なし / | 礼金/償却・敷引 | 141,000円 / |
| 更新料 | フリーレント | なし | |
| その他費用 | クリーニング費用:60,000円 | ||
| 所在地 | 東京都足立区伊興3丁目 | ||
| 交通 |
東武伊勢崎・大師線「竹ノ塚」 徒歩7分 日暮里舎人ライナー「舎人公園」 徒歩22分 東武伊勢崎・大師線「大師前」 徒歩32分 |
||
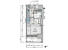
| 間取り | 1LDK | 間取り内訳 |
洋室 5.1 畳 LDK 10.3 畳 |
| 専有面積 | 42.47m² | バルコニー面積 | |
| 築年月(築年数) | 2014年05月(築11年) | 方位 | 南 |
| 建物構造 | 木造 | 所在階/階建 | 2階/2階建 |
| 総戸数 | 駐車場 | 無 | |
| 保険料 | 要 | 契約期間 | 2年間 |
| 引渡 | 2026年02月 | ||
| 現況(予定年月) | 賃貸中 | ||
| 管理 | 管理人/無、管理会社/大東建託パートナーズ | ||
| 設備・条件 | BSアンテナ、CATV、TVドアホン、駐輪場、2階以上、角部屋、システムキッチン、バス・トイレ別、温水洗浄便座、浴室乾燥機、追い焚き、室内洗濯機置き場、フローリング、エアコン、バルコニー、敷金なし | ||
| 備考 | 保証人代行:必須/ハウスリーブ株式会社:契約時保証委託料:2.2万/月額保証委託料:賃料総額の2.2%又は5.5% ※ペット可は2.5万/2.5% | ||
| 周辺施設 |
ビッグ・エ-足立西竹の塚店(距離:507m) ローソン 足立伊興四丁目店(距離:99m) セブンイレブン 足立竹ノ塚駅西店(距離:452m) |
||
| 物件番号 | 66350 | 取引態様 | 仲介 |
| 情報更新日 | 2025年12月25日 | ||
| 次回更新予定日 | 情報更新日より15日以内 | ||




















COMMENTS FROM STAFFハッピーノ Iの
担当者コメント
東京の1人暮らしはアセットナビへ!自社ブランドマンションをはじめ、賃貸物件を数多くご紹介可能です。