本情報は過去に掲載された物件の参考情報です。 最新の物件情報など詳細につきましてはお気軽にお問合せください。
| 賃料 | *** | 管理費・共益費 | *** |
|---|---|---|---|
| 敷金/礼金 | *** / *** | 専有面積 | 26.00m² |
| 間取り | 1K | 階建 | ***/10階建 |
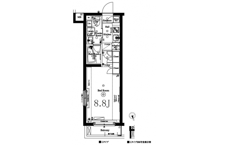
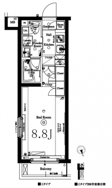
【間取り】
【トイレ】
【キッチン】
【リビング】
【風呂】
【ベッドルーム】
【玄関】
【バルコニー・ベランダ】
【洗面所】
【その他設備】
【収納】
【眺望】
【収納】
【風呂】
【キッチン】
【外観】街並みに調和するシックな色調でありながら新鮮で都会的な印象を与える洗練されたデザイン性がステイタスのあるライフステージを創出します。
【外観】モダンでスタイリッシュ、そして知的なファサード。
【エントランス】建物の個性やクオリティー、さらにはブランド力のあるエリアのステイタスにふさわしいデザイン性をも象徴するのがエントランス。
【エントランスホール】エントランス内に歩みを進めた瞬間、都会の喧騒とは無縁の静寂の世界へと誘われます。それはやわらかな照明の光につつまれた美しくエレガントな雰囲気が醸し出す、品格あるライフステージへのプロローグ。ここから始まる新たな都市生活に素敵な彩りを添えています。
【ロゴ】シンプルで洗練されたデザインのロゴ。
【宅配ボックス】居住者は操作も簡単で24時間いつでも好きな時に、宅配業者を待つことなく、忙しいときやお出かけするときに宅配物を受け取ることが出来ます。
【オートロック】エントランスの集合玄関機のカメラにより訪問者を映像で確認出来ます。その他にも解錠表示機能等で居住者の安全と安心を確保します。
【防犯カメラ】居住者の安全を守るため、監視カメラを設置しています。トラブルの発生を未然に抑止し、 心理的な効果にもつながり、高い安全性を確保します。
【駐輪場】48台分の自転車置き場を設けました。ショッピングや近隣へのお出かけなどに便利です。
GoogleMapを読み込んでいます。
35.567642 139.726944
アークマーク梅屋敷アジールコート【満室】の物件動画
アークマーク梅屋敷アジールコート【満室】の詳細
| 賃料 | *** | 管理費・共益費 | *** |
|---|---|---|---|
| 敷金/保証金 | *** / *** | 礼金/償却・敷引 | *** / *** |
| 更新料 | *** | フリーレント | *** |
| その他費用 | *** | ||
| 所在地 | 東京都大田区大森西6丁目 | ||
| 交通 |
京浜急行電鉄本線「梅屋敷(東京)」 徒歩2分 京浜東北・根岸線「蒲田」 徒歩16分 京浜急行電鉄本線「大森町」 徒歩9分 |
||
| 間取り | 1K | 間取り内訳 |
K 2 畳 洋室 8.8 畳 |
| 専有面積 | 26.00m² | バルコニー面積 | |
| 築年月(築年数) | 2021年06月(未入居) | 方位 | 北東 |
| 建物構造 | RC(鉄筋コンクリート) | 所在階/階建 | ***/10階建 |
| 総戸数 | 46戸 | 駐車場 | |
| 保険料 | *** | 契約期間 | *** |
| 引渡 | 即時 | ||
| 現況(予定年月) | 空室 | ||
| 管理 | 管理人/巡回、管理会社/株式会社アセットコミュニティ | ||
| 設備・条件 | ARKMARK(アークマーク)シリーズ、インターネット対応、BSアンテナ、CSアンテナ、CATV、光ファイバー、オートロック、防犯カメラ、24時間セキュリティ、ディンプルキー、ダブルロックキー、宅配ボックス、平置駐車場、バイク置き場、駐輪場、エレベータ、デザイナーズ、都市ガス、角部屋、システムキッチン、バス・トイレ別、浴室乾燥機、室内洗濯機置き場、フローリング、24時間換気システム、エアコン、バルコニー、分譲賃貸 | ||
| 備考 | 保証人代行:必須/初回保証料貸主負担、利用条件あり | ||
| 周辺施設 |
大田区立大森第三小学校400m、蒲田中学校900m、コンビニ距離30m、スーパー距離90m、病院距離320m |
||
| 物件番号 | 17941 | 取引態様 | 専任媒介 |
| 情報更新日 | *** | ||
| 次回更新予定日 | 情報更新日より15日以内 | ||


















COMMENTS FROM STAFFアークマーク梅屋敷アジールコート【満室】の
担当者コメント
6月度キャンペーン実施中!仲介手数料50%オフ、クラブアセット+保証会社初回保証料貸主負担!東京の1人暮らしはアセットナビへ!自社ブランドマンションをはじめ、賃貸物件を数多くご紹介可能です。