| 賃料 | 10万円 | 管理費・共益費 | 1.5万円 |
|---|---|---|---|
| 敷金/礼金 | なし / 1ヶ月 | 専有面積 | 22.42m² |
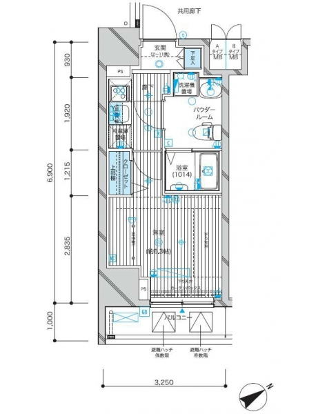
| 間取り | 1K | 階建 | 6階/14階建 |
【間取り】
【キッチン】
【リビング】
【風呂】
【トイレ】
【玄関】
【バルコニー・ベランダ】
【洗面所】
【収納】
【その他】
【外観】外観・土地
【エントランス】ロビー
【ロビー】セキュリティ
【その他共有部分】共用設備
【エントランス】エントランス
【外観】外観・土地
【[その他]】まいばすけっと京急蒲田駅前店 距離:594m
【[その他]】セブンイレブン京急蒲田駅前店 距離:733m
【[その他]】まいばすけっと大森中2丁目店 距離:859m
【[その他]】セブンイレブン大田区大森中3丁目店 距離:685m
GoogleMapを読み込んでいます。
35.563748 139.726139
メインステージ蒲田VIエグザの詳細
| 賃料 | 10万円 | 管理費・共益費 | 1.5万円 |
|---|---|---|---|
| 敷金/保証金 | なし / | 礼金/償却・敷引 | 1ヶ月 / |
| 更新料 | 1.5ヶ月 | フリーレント | なし |
| その他費用 |
鍵交換代:29,700円 退去時ハウスクリーニング費:49,500円 AMLクラブサポート:16,500円 退去時エアコン清掃費用:16,500円 |
||
| 所在地 | 東京都大田区蒲田3丁目 | ||
| 交通 |
京浜急行電鉄本線「京急蒲田」 徒歩5分 京浜東北・根岸線「蒲田」 徒歩13分 京浜急行電鉄本線「梅屋敷(東京)」 徒歩5分 |
||
| 間取り | 1K | 間取り内訳 |
洋室 6.3 畳 K 2 畳 |
| 専有面積 | 22.42m² | バルコニー面積 | |
| 築年月(築年数) | 2012年05月(築13年) | 方位 | 南東 |
| 建物構造 | RC(鉄筋コンクリート) | 所在階/階建 | 6階/14階建 |
| 総戸数 | 駐車場 | ||
| 保険料 | 要 15,000円 2年 | 契約期間 | 2年間 |
| 引渡 | 2026年03月 | ||
| 現況(予定年月) | 居住中 | ||
| 管理 | |||
| 設備・条件 | BSアンテナ、CSアンテナ、オートロック、TVドアホン、防犯カメラ、ディンプルキー、ダブルロックキー、宅配ボックス、バイク置き場、駐輪場、エレベータ、2階以上、角部屋、システムキッチン、バス・トイレ別、温水洗浄便座、浴室乾燥機、室内洗濯機置き場、フローリング、24時間換気システム、エアコン、バルコニー、分譲賃貸、敷金なし、ペット相談 | ||
| 備考 | 保証人代行:必須/家賃総額の50%~ | ||
| 周辺施設 |
ローソン 東蒲田二丁目店(距離:268m) ファミリーマート サンズ京急蒲田駅西口店(距離:506m) まいばすけっと 蒲田キネマ通り店(距離:272m) まいばすけっと 蒲田3丁目店(距離:340m) ツルハドラッグ 東蒲田店(距離:557m) |
||
| 物件番号 | 66648 | 取引態様 | 仲介 |
| 情報更新日 | 2026年01月12日 | ||
| 次回更新予定日 | 情報更新日より15日以内 | ||



















COMMENTS FROM STAFFメインステージ蒲田VIエグザの
担当者コメント
東京の1人暮らしはアセットナビへ!自社ブランドマンションをはじめ、賃貸物件を数多くご紹介可能です。こちらの物件は、分譲賃貸マンションで設備が充実しております。オートロックシステムでセキュリティもバッチリです。