メインステージ大森北II 1階 | 1K | 10.7万円
| 賃料 | 10.7万円 | 管理費・共益費 | 1.5万円 |
|---|---|---|---|
| 敷金/礼金 | なし / 1ヶ月 | 専有面積 | 22.42m² |
| 間取り | 1K | 階建 | 1階/7階建 |
メインステージ大森北IIの詳細
| 賃料 | 10.7万円 | 管理費・共益費 | 1.5万円 |
|---|---|---|---|
| 敷金/保証金 | なし / | 礼金/償却・敷引 | 1ヶ月 / |
| 更新料 | 1.5ヶ月 | フリーレント | なし |
| その他費用 |
AMLクラブサポート費用:16,500円 ルームクリーニング費用(退去時):49,500円 エアコンクリーニング費用(退去時):16,500円 |
||
| 所在地 | 東京都大田区大森北6丁目 | ||
| 交通 |
京浜急行電鉄本線「平和島」 徒歩9分 京浜東北・根岸線「大森(東京)」 徒歩14分 京浜急行電鉄本線「大森町」 徒歩14分 |
||
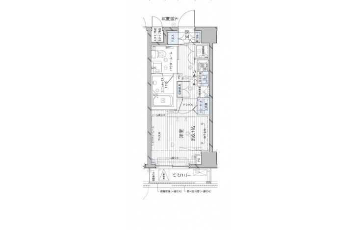
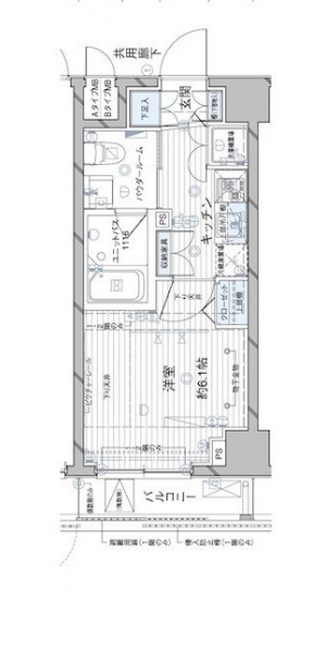
| 間取り | 1K | 間取り内訳 |
洋室 6.1 畳 |
| 専有面積 | 22.42m² | バルコニー面積 | |
| 築年月(築年数) | 2012年11月(築13年) | 方位 | 北東 |
| 建物構造 | RC(鉄筋コンクリート) | 所在階/階建 | 1階/7階建 |
| 総戸数 | 44戸 | 駐車場 | |
| 保険料 | 要 15,000円 2年 | 契約期間 | 2年間 |
| 引渡 | 2026年02月 | ||
| 現況(予定年月) | 賃貸中 | ||
| 管理 | 管理人/巡回、 | ||
| 設備・条件 | BSアンテナ、CSアンテナ、オートロック、TVドアホン、防犯カメラ、宅配ボックス、バイク置き場、駐輪場、エレベータ、システムキッチン、バス・トイレ別、温水洗浄便座、浴室乾燥機、室内洗濯機置き場、フローリング、24時間換気システム、エアコン、バルコニー、分譲賃貸、敷金なし、ペット不可 | ||
| 備考 | 保証人代行:必須/総賃料の50%~ | ||
| 周辺施設 |
オオゼキ 大森北店(距離:209m) クリエイトSD(エス・ディー) 大田大森北店(距離:266m) セブンイレブン 大田区大森北6丁目店(距離:339m) まいばすけっと 大森北5丁目店(距離:294m) ファミリーマート 大森北店(距離:371m) |
||
| 物件番号 | 42715 | 取引態様 | 仲介 |
| 情報更新日 | 2025年12月27日 | ||
| 次回更新予定日 | 情報更新日より15日以内 | ||





















COMMENTS FROM STAFFメインステージ大森北IIの
担当者コメント
東京の1人暮らしはアセットナビへ!自社ブランドマンションをはじめ、賃貸物件を数多くご紹介可能です。こちらの物件は、分譲賃貸マンションで設備が充実しております。オートロックシステムでセキュリティもバッチリです。