本情報は過去に掲載された物件の参考情報です。 最新の物件情報など詳細につきましてはお気軽にお問合せください。
| 賃料 | *** | 管理費・共益費 | *** |
|---|---|---|---|
| 敷金/礼金 | *** / *** | 専有面積 | 22.42m² |
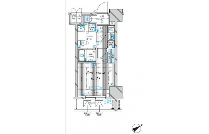
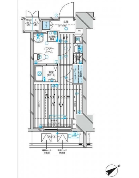
| 間取り | 1K | 階建 | ***/14階建 |
【間取り】
【洗面所】
【キッチン】
【リビング】
【風呂】
【ベッドルーム】
【玄関】
【バルコニー・ベランダ】
【トイレ】
【その他設備】
【その他】
【その他設備】
【キッチン】
【その他】
【外観】外観・土地
【エントランス】ロビー
【ロビー】セキュリティ
【その他共有部分】共用設備
【エントランス】エントランス
【外観】外観・土地
【[その他]】まいばすけっと京急蒲田駅前店 距離:594m
【[その他]】セブンイレブン京急蒲田駅前店 距離:733m
【[その他]】まいばすけっと大森中2丁目店 距離:859m
【[その他]】セブンイレブン大田区大森中3丁目店 距離:685m
GoogleMapを読み込んでいます。
35.563748 139.726139
メインステージ蒲田VIエグザ【満室】の詳細
| 賃料 | *** | 管理費・共益費 | *** |
|---|---|---|---|
| 敷金/保証金 | *** / *** | 礼金/償却・敷引 | *** / *** |
| 更新料 | *** | フリーレント | *** |
| その他費用 | *** | ||
| 所在地 | 東京都大田区蒲田3丁目 | ||
| 交通 |
京浜急行電鉄本線「京急蒲田」 徒歩5分 京浜急行電鉄本線「梅屋敷(東京)」 徒歩6分 京浜東北・根岸線「蒲田」 徒歩12分 |
||
| 間取り | 1K | 間取り内訳 |
K 2 畳 洋室 6.4 畳 |
| 専有面積 | 22.42m² | バルコニー面積 | |
| 築年月(築年数) | 2012年05月(築13年) | 方位 | 南東 |
| 建物構造 | RC(鉄筋コンクリート) | 所在階/階建 | ***/14階建 |
| 総戸数 | 120戸 | 駐車場 | 無 |
| 保険料 | *** | 契約期間 | *** |
| 引渡 | 即時 | ||
| 現況(予定年月) | 賃貸中 | ||
| 管理 | |||
| 設備・条件 | BSアンテナ、CSアンテナ、光ファイバー、オートロック、TVドアホン、防犯カメラ、ディンプルキー、ダブルロックキー、宅配ボックス、バイク置き場、駐輪場、エレベータ、デザイナーズ、2階以上、システムキッチン、バス・トイレ別、温水洗浄便座、浴室乾燥機、室内洗濯機置き場、洗濯機置き場有、フローリング、24時間換気システム、エアコン、バルコニー、分譲賃貸、日当たり良好 | ||
| 備考 | 保証人代行:必須/オリコフォレントインシュア、他、家賃総額の50%~ | ||
| 周辺施設 |
ローソン 東蒲田二丁目店(距離:269m) ファミリーマート サンズ京急蒲田駅西口店(距離:507m) まいばすけっと 蒲田キネマ通り店(距離:273m) まいばすけっと 蒲田3丁目店(距離:341m) クリエイトSD(エス・ディー) ウィングキッチン京急蒲田店(距離:544m) ツルハドラッグ 東蒲田店(距離:556m) |
||
| 物件番号 | 29852 | 取引態様 | 仲介 |
| 情報更新日 | *** | ||
| 次回更新予定日 | 情報更新日より15日以内 | ||



















COMMENTS FROM STAFFメインステージ蒲田VIエグザ【満室】の
担当者コメント
東京の1人暮らしはアセットナビへ!自社ブランドマンションをはじめ、賃貸物件を数多くご紹介可能です。こちらの物件は、分譲賃貸マンションで設備が充実しております。オートロックシステムでセキュリティもバッチリです。