メインステージ大森北II【満室】 *** | 1K | ***
本情報は過去に掲載された物件の参考情報です。 最新の物件情報など詳細につきましてはお気軽にお問合せください。
| 賃料 | *** | 管理費・共益費 | *** |
|---|---|---|---|
| 敷金/礼金 | *** / *** | 専有面積 | 22.42m² |
| 間取り | 1K | 階建 | ***/7階建 |
メインステージ大森北II【満室】の詳細
| 賃料 | *** | 管理費・共益費 | *** |
|---|---|---|---|
| 敷金/保証金 | *** / *** | 礼金/償却・敷引 | *** / *** |
| 更新料 | *** | フリーレント | *** |
| その他費用 | *** | ||
| 所在地 | 東京都大田区大森北6丁目 | ||
| 交通 |
京浜急行電鉄本線「平和島」 徒歩9分 京浜東北・根岸線「大森(東京)」 徒歩14分 京浜急行電鉄本線「大森町」 徒歩14分 |
||
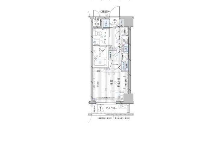
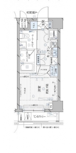
| 間取り | 1K | 間取り内訳 |
K 1.5 畳 洋室 6.1 畳 |
| 専有面積 | 22.42m² | バルコニー面積 | |
| 築年月(築年数) | 2012年11月(築13年) | 方位 | 北東 |
| 建物構造 | RC(鉄筋コンクリート) | 所在階/階建 | ***/7階建 |
| 総戸数 | 44戸 | 駐車場 | |
| 保険料 | *** | 契約期間 | *** |
| 引渡 | 即時 | ||
| 現況(予定年月) | 空室 | ||
| 管理 | 管理人/日勤、 | ||
| 設備・条件 | BSアンテナ、CSアンテナ、光ファイバー、オートロック、TVドアホン、防犯カメラ、宅配ボックス、バイク置き場、駐輪場、エレベータ、デザイナーズ、システムキッチン、バス・トイレ別、温水洗浄便座、浴室乾燥機、室内洗濯機置き場、フローリング、24時間換気システム、エアコン、バルコニー、分譲賃貸、ルームシェア相談 | ||
| 備考 | 保証人代行:必須/オリコフォレントインシュア、他、総賃料の50%~ | ||
| 周辺施設 |
オオゼキ 大森北店(距離:209m) クリエイトSD(エス・ディー) 大田大森北店(距離:266m) セブンイレブン 大田区大森北6丁目店(距離:339m) まいばすけっと 大森北5丁目店(距離:294m) ファミリーマート 大森北店(距離:371m) |
||
| 物件番号 | 19887 | 取引態様 | 代理 |
| 情報更新日 | *** | ||
| 次回更新予定日 | 情報更新日より15日以内 | ||




















COMMENTS FROM STAFFメインステージ大森北II【満室】の
担当者コメント
東京の1人暮らしはアセットナビへ!自社ブランドマンションをはじめ、賃貸物件を数多くご紹介可能です。こちらの物件は、分譲賃貸マンションで設備が充実しております。オートロックシステムでセキュリティもバッチリです。快適な独立洗面台つき。