フェニックス新宿夏目坂 2階 | 1K | 15.7万円
| 賃料 | 15.7万円 | 管理費・共益費 | 1万円 |
|---|---|---|---|
| 敷金/礼金 | 1ヶ月 / 1ヶ月 | 専有面積 | 38.06m² |
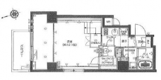
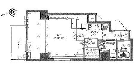
| 間取り | 1K | 階建 | 2階/10階建 |
フェニックス新宿夏目坂の詳細
| 賃料 | 15.7万円 | 管理費・共益費 | 1万円 |
|---|---|---|---|
| 敷金/保証金 | 1ヶ月 / | 礼金/償却・敷引 | 1ヶ月 / |
| 更新料 | 1ヶ月 | フリーレント | なし |
| その他費用 | 鍵交換費用:27,500円 | ||
| 所在地 | 東京都新宿区原町3丁目 | ||
| 交通 |
都営大江戸線「若松河田」 徒歩4分 都営大江戸線「牛込柳町」 徒歩5分 東京地下鉄東西線「早稲田」 徒歩12分 |
||
| 間取り | 1K | 間取り内訳 |
洋室 12.1 畳 2 階 |
| 専有面積 | 38.06m² | バルコニー面積 | |
| 築年月(築年数) | 2012年08月(築13年) | 方位 | 北 |
| 建物構造 | RC(鉄筋コンクリート) | 所在階/階建 | 2階/10階建 |
| 総戸数 | 27戸 | 駐車場 | |
| 保険料 | 要 | 契約期間 | 2年間 |
| 引渡 | 相談 | ||
| 現況(予定年月) | 空室 | ||
| 管理 | |||
| 設備・条件 | CATV、光ファイバー、オートロック、TVドアホン、防犯カメラ、ディンプルキー、ダブルロックキー、宅配ボックス、駐輪場、エレベータ、2階以上、角部屋、システムキッチン、バス・トイレ別、温水洗浄便座、浴室乾燥機、追い焚き、室内洗濯機置き場、洗濯機置き場有、フローリング、24時間換気システム、エアコン、ウォークインクローゼット、床下収納、バルコニー、分譲賃貸、ペット相談 | ||
| 備考 | 保証人代行:必須/総賃料50%~ | ||
| 周辺施設 |
まいばすけっと 新宿原町3丁目店(距離:8m) 三徳 夏目坂店(距離:240m) クリエイトSD(エス・ディー) 新宿若松町店(距離:140m) ナチュラルローソン 東京女子医大病院店(距離:223m) セブンイレブン 新宿若松町店(距離:255m) |
||
| 物件番号 | 65448 | 取引態様 | 仲介 |
| 情報更新日 | 2026年01月26日 | ||
| 次回更新予定日 | 情報更新日より15日以内 | ||


















COMMENTS FROM STAFFフェニックス新宿夏目坂の
担当者コメント
東京の1人暮らしはアセットナビへ!自社ブランドマンションをはじめ、賃貸物件を数多くご紹介可能です。