メインステージ西新宿【満室】 *** | 1LDK | ***
本情報は過去に掲載された物件の参考情報です。 最新の物件情報など詳細につきましてはお気軽にお問合せください。
| 賃料 | *** | 管理費・共益費 | *** |
|---|---|---|---|
| 敷金/礼金 | *** / *** | 専有面積 | 42.63m² |
| 間取り | 1LDK | 階建 | ***/12階建 |
メインステージ西新宿【満室】の詳細
| 賃料 | *** | 管理費・共益費 | *** |
|---|---|---|---|
| 敷金/保証金 | *** / *** | 礼金/償却・敷引 | *** / *** |
| 更新料 | *** | フリーレント | *** |
| その他費用 | *** | ||
| 所在地 | 東京都新宿区西新宿6丁目 | ||
| 交通 |
都営大江戸線「西新宿五丁目」 徒歩5分 東京地下鉄丸ノ内線「西新宿」 徒歩11分 都営大江戸線「都庁前」 徒歩10分 |
||
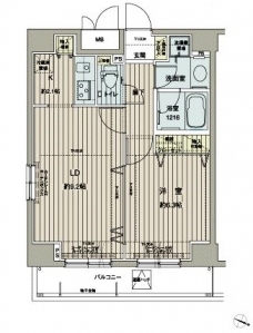
| 間取り | 1LDK | 間取り内訳 |
LDK 11.3 畳 洋室 6.3 畳 |
| 専有面積 | 42.63m² | バルコニー面積 | |
| 築年月(築年数) | 2004年02月(築21年) | 方位 | 北東 |
| 建物構造 | RC(鉄筋コンクリート) | 所在階/階建 | ***/12階建 |
| 総戸数 | 駐車場 | ||
| 保険料 | *** | 契約期間 | *** |
| 引渡 | 即時 | ||
| 現況(予定年月) | 空室 | ||
| 管理 | 管理人/巡回、 | ||
| 設備・条件 | BSアンテナ、CSアンテナ、CATV、オートロック、TVドアホン、防犯カメラ、宅配ボックス、駐輪場、エレベータ、デザイナーズ、2階以上、最上階、角部屋、システムキッチン、バス・トイレ別、温水洗浄便座、浴室乾燥機、室内洗濯機置き場、フローリング、24時間換気システム、エアコン、バルコニー、分譲賃貸、敷金なし | ||
| 備考 | 保証人代行:必須/賃料総額の50%~ | ||
| 周辺施設 |
まいばすけっと 西新宿8丁目店(距離:167m) maruetsu(マルエツ) プチ 西新宿六丁目店(距離:174m) ファミリーマート 新宿十二社店(距離:252m) ファミリーマート 新宿アイタウン店(距離:214m) ドラッグセイムス西新宿6丁目店(距離:82m) |
||
| 物件番号 | 41181 | 取引態様 | 仲介 |
| 情報更新日 | *** | ||
| 次回更新予定日 | 情報更新日より15日以内 | ||


















COMMENTS FROM STAFFメインステージ西新宿【満室】の
担当者コメント
東京の1人暮らしはアセットナビへ!自社ブランドマンションをはじめ、賃貸物件を数多くご紹介可能です。サマーキャンペーン実施中!ご来店のお客様・先着25名にハーゲンダッツギフト券をプレゼント。詳しくはスタッフまでお問い合わせください。