ルーブル早稲田六番館【満室】 *** | 2K | ***
本情報は過去に掲載された物件の参考情報です。 最新の物件情報など詳細につきましてはお気軽にお問合せください。
| 賃料 | *** | 管理費・共益費 | *** |
|---|---|---|---|
| 敷金/礼金 | *** / *** | 専有面積 | 40.50m² |
| 間取り | 2K | 階建 | ***/5階建(B1階) |
ルーブル早稲田六番館【満室】の詳細
| 賃料 | *** | 管理費・共益費 | *** |
|---|---|---|---|
| 敷金/保証金 | *** / *** | 礼金/償却・敷引 | *** / *** |
| 更新料 | *** | フリーレント | *** |
| その他費用 | *** | ||
| 所在地 | 東京都新宿区戸山1丁目 | ||
| 交通 |
東京地下鉄東西線「早稲田」 徒歩4分 都営大江戸線「若松河田」 徒歩10分 都営大江戸線「牛込柳町」 徒歩13分 |
||
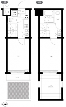
| 間取り | 2K | 間取り内訳 |
洋室 6 畳 1 階 洋室 6 畳 1 階 K 2 畳 1 階 |
| 専有面積 | 40.50m² | バルコニー面積 | |
| 築年月(築年数) | 2008年04月(築17年) | 方位 | 西 |
| 建物構造 | RC(鉄筋コンクリート) | 所在階/階建 | ***/5階建(B1階) |
| 総戸数 | 86戸 | 駐車場 | 無 |
| 保険料 | *** | 契約期間 | *** |
| 引渡 | 即時 | ||
| 現況(予定年月) | 空室 | ||
| 管理 | 管理人/常駐、管理会社/(株)TFDコミュニティ | ||
| 設備・条件 | BSアンテナ、CSアンテナ、オートロック、TVドアホン、防犯カメラ、ディンプルキー、ダブルロックキー、宅配ボックス、駐輪場、エレベータ、システムキッチン、バス・トイレ別、温水洗浄便座、浴室乾燥機、室内洗濯機置き場、フローリング、メゾネット、24時間換気システム、エアコン、バルコニー、分譲賃貸、敷金なし、ペット不可 | ||
| 備考 | 保証人代行:必須/初回保証料30%(家賃+管理費)年間保証料10,000円 ※学生初回保証料9,000円 | ||
| 周辺施設 |
セブンイレブン 新宿喜久井町店(距離:201m) ファミリーマート 早稲田駅前店(距離:381m) クリエイトSD(エス・ディー) 新宿早稲田店(距離:412m) ローソン 新宿馬場下町店(距離:401m) ツルハドラッグ 早稲田店(距離:458m) 三徳 夏目坂店(距離:363m) |
||
| 物件番号 | 55345 | 取引態様 | 仲介 |
| 情報更新日 | *** | ||
| 次回更新予定日 | 情報更新日より15日以内 | ||




















COMMENTS FROM STAFFルーブル早稲田六番館【満室】の
担当者コメント
東京の1人暮らしはアセットナビへ!自社ブランドマンションをはじめ、賃貸物件を数多くご紹介可能です。こちらの物件は、分譲賃貸マンションで設備が充実しております。オートロックシステムでセキュリティもバッチリです。