DAMIER-A 1階 | 2LDK | 16.7万円
| 賃料 | 16.7万円 | 管理費・共益費 | 0.4万円 |
|---|---|---|---|
| 敷金/礼金 | 1ヶ月 / 1ヶ月 | 専有面積 | 50.51m² |
| 間取り | 2LDK | 階建 | 1階/3階建 |
DAMIER-Aの詳細
| 賃料 | 16.7万円 | 管理費・共益費 | 0.4万円 |
|---|---|---|---|
| 敷金/保証金 | 1ヶ月 / | 礼金/償却・敷引 | 1ヶ月 / |
| 更新料 | 167,000円 | フリーレント | なし |
| その他費用 | 鍵交換代:11,000円 | ||
| 所在地 | 東京都練馬区旭丘1丁目 | ||
| 交通 |
都営大江戸線「新江古田」 徒歩5分 西武池袋・豊島線「江古田」 徒歩6分 西武有楽町線「新桜台」 徒歩13分 |
||
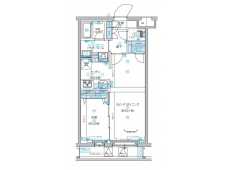
| 間取り | 2LDK | 間取り内訳 |
洋室 5 畳 洋室 6 畳 LDK 10 畳 |
| 専有面積 | 50.51m² | バルコニー面積 | |
| 築年月(築年数) | 2009年03月(築16年) | 方位 | 南 |
| 建物構造 | RC(鉄筋コンクリート) | 所在階/階建 | 1階/3階建 |
| 総戸数 | 駐車場 | ||
| 保険料 | 要 | 契約期間 | 2年間 |
| 引渡 | 即時 | ||
| 現況(予定年月) | 空室 | ||
| 管理 | |||
| 設備・条件 | オートロック、TVドアホン、宅配ボックス、デザイナーズ、バス・トイレ別、浴室乾燥機、追い焚き、室内洗濯機置き場、洗濯機置き場有、フローリング、24時間換気システム、エアコン、バルコニー | ||
| 備考 | 保証人代行:必須/保証料不要 | ||
| 周辺施設 |
スーパーみらべる江古田店(距離:139m) ローソンストア100 LS練馬旭丘一丁目店(距離:241m) |
||
| 物件番号 | 67511 | 取引態様 | 仲介 |
| 情報更新日 | 2026年02月06日 | ||
| 次回更新予定日 | 情報更新日より15日以内 | ||














COMMENTS FROM STAFFDAMIER-Aの
担当者コメント
東京の1人暮らしはアセットナビへ!自社ブランドマンションをはじめ、賃貸物件を数多くご紹介可能です。こちらの物件は、設備が充実しております。オートロックシステムでセキュリティもバッチリです。