本情報は過去に掲載された物件の参考情報です。 最新の物件情報など詳細につきましてはお気軽にお問合せください。
| 賃料 | *** | 管理費・共益費 | *** |
|---|---|---|---|
| 敷金/礼金 | *** / *** | 専有面積 | 41.40m² |
| 間取り | 2DK | 階建 | ***/4階建 |
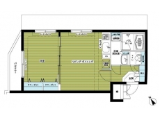
【間取り】
【トイレ】
【キッチン】
【リビング】
【風呂】
【収納】
【玄関】
【バルコニー・ベランダ】
【その他】
【ベッドルーム】
【その他設備】
【その他部屋・スペース】
【その他】
【リビング】
【キッチン】
【外観】
【セキュリティ】
【その他共有部分】
【エントランス】
【スーパー】まいばすけっと 西早稲田3丁目店 距離:163m
【スーパー】ローソンストア100 LS新宿早稲田通店 距離:231m
【コンビ二】ファミリーマート 西早稲田店 距離:223m
【コンビ二】セブンイレブン 新宿西早稲田3丁目店 距離:221m
【ドラックストア】スギ薬局 高田馬場店 距離:380m
GoogleMapを読み込んでいます。
35.712004 139.712104
スワンハイツ【満室】の詳細
| 賃料 | *** | 管理費・共益費 | *** |
|---|---|---|---|
| 敷金/保証金 | *** / *** | 礼金/償却・敷引 | *** / *** |
| 更新料 | *** | フリーレント | *** |
| その他費用 | *** | ||
| 所在地 | 東京都新宿区西早稲田3丁目 | ||
| 交通 |
山手線「高田馬場」 徒歩11分 東京地下鉄東西線「高田馬場」 徒歩8分 東京地下鉄副都心線「西早稲田」 徒歩7分 |
||
| 間取り | 2DK | 間取り内訳 |
洋室 6 畳 洋室 5.5 畳 DK 6 畳 |
| 専有面積 | 41.40m² | バルコニー面積 | |
| 築年月(築年数) | 1989年08月(築36年) | 方位 | 東 |
| 建物構造 | RC(鉄筋コンクリート) | 所在階/階建 | ***/4階建 |
| 総戸数 | 15戸 | 駐車場 | |
| 保険料 | *** | 契約期間 | *** |
| 引渡 | 相談 | ||
| 現況(予定年月) | 居住中 | ||
| 管理 | |||
| 設備・条件 | 光ファイバー、オートロック、宅配ボックス、バイク置き場、エレベータ、2階以上、バス・トイレ別、室内洗濯機置き場、フローリング、エアコン、ルーフバルコニー、分譲賃貸、ペット不可 | ||
| 備考 | 保証人代行:必須/保証会社指定 | ||
| 周辺施設 |
まいばすけっと 西早稲田3丁目店(距離:163m) ローソンストア100 LS新宿早稲田通店(距離:231m) ファミリーマート 西早稲田店(距離:223m) セブンイレブン 新宿西早稲田3丁目店(距離:221m) スギ薬局 高田馬場店(距離:380m) |
||
| 物件番号 | 62172 | 取引態様 | 仲介 |
| 情報更新日 | *** | ||
| 次回更新予定日 | 情報更新日より15日以内 | ||




















COMMENTS FROM STAFFスワンハイツ【満室】の
担当者コメント
東京の1人暮らしはアセットナビへ!自社ブランドマンションをはじめ、賃貸物件を数多くご紹介可能です。こちらの物件は、分譲賃貸マンションで設備が充実しております。オートロックシステムでセキュリティもバッチリです。