メインステージ浅草入谷II【満室】 *** | 1LDK | ***
本情報は過去に掲載された物件の参考情報です。 最新の物件情報など詳細につきましてはお気軽にお問合せください。
| 賃料 | *** | 管理費・共益費 | *** |
|---|---|---|---|
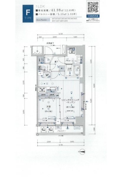
| 敷金/礼金 | *** / *** | 専有面積 | 41.98m² |
| 間取り | 1LDK | 階建 | ***/14階建 |
メインステージ浅草入谷II【満室】の詳細
| 賃料 | *** | 管理費・共益費 | *** |
|---|---|---|---|
| 敷金/保証金 | *** / *** | 礼金/償却・敷引 | *** / *** |
| 更新料 | *** | フリーレント | *** |
| その他費用 | *** | ||
| 所在地 | 東京都台東区千束2丁目 | ||
| 交通 |
東京地下鉄日比谷線「入谷(東京)」 徒歩9分 つくばエクスプレス「浅草」 徒歩11分 東京地下鉄日比谷線「三ノ輪」 徒歩15分 |
||
| 間取り | 1LDK | 間取り内訳 |
LDK 12.4 畳 洋室 4.5 畳 |
| 専有面積 | 41.98m² | バルコニー面積 | |
| 築年月(築年数) | 2021年05月(築4年) | 方位 | 西 |
| 建物構造 | RC(鉄筋コンクリート) | 所在階/階建 | ***/14階建 |
| 総戸数 | 100戸 | 駐車場 | |
| 保険料 | *** | 契約期間 | *** |
| 引渡 | 2023年07月 | ||
| 現況(予定年月) | 居住中 | ||
| 管理 | 管理人/日勤、 | ||
| 設備・条件 | BSアンテナ、CSアンテナ、オートロック、TVドアホン、防犯カメラ、ディンプルキー、ダブルロックキー、宅配ボックス、エレベータ、デザイナーズ、システムキッチン、バス・トイレ別、温水洗浄便座、浴室乾燥機、追い焚き、室内洗濯機置き場、フローリング、24時間換気システム、エアコン、バルコニー、分譲賃貸、敷金なし、ペット相談 | ||
| 備考 | 保証人代行:必須/総賃料の50%~ | ||
| 周辺施設 |
まいばすけっと 千束3丁目店(距離:260m) ファミリーマート 千束三丁目店(距離:289m) |
||
| 物件番号 | 38358 | 取引態様 | 仲介 |
| 情報更新日 | *** | ||
| 次回更新予定日 | 情報更新日より15日以内 | ||





















COMMENTS FROM STAFFメインステージ浅草入谷II【満室】の
担当者コメント
東京の1人暮らしはアセットナビへ!自社ブランドマンションをはじめ、賃貸物件を数多くご紹介可能です。こちらの物件は、分譲賃貸マンションで設備が充実しております。オートロックシステムでセキュリティもバッチリです。