メインステージ東日暮里 9階 | 1K | 12.6万円
| 賃料 | 12.6万円 | 管理費・共益費 | 1.5万円 |
|---|---|---|---|
| 敷金/礼金 | なし / なし | 専有面積 | 26.00m² |
| 間取り | 1K | 階建 | 9階/13階建 |
メインステージ東日暮里の詳細
| 賃料 | 12.6万円 | 管理費・共益費 | 1.5万円 |
|---|---|---|---|
| 敷金/保証金 | なし / | 礼金/償却・敷引 | なし / |
| 更新料 | 1.5ヶ月 | フリーレント | なし |
| その他費用 |
クラブサポート:16,500円 鍵交換費用:29,700円 退去時クリーニング費用:49,500円 退去時エアコン清掃費用:16,500円 |
||
| 所在地 | 東京都荒川区東日暮里5丁目 | ||
| 交通 |
山手線「鶯谷」 徒歩5分 京浜東北・根岸線「日暮里」 徒歩10分 東京地下鉄日比谷線「入谷(東京)」 徒歩14分 東京地下鉄日比谷線 入谷 徒歩13分 |
||
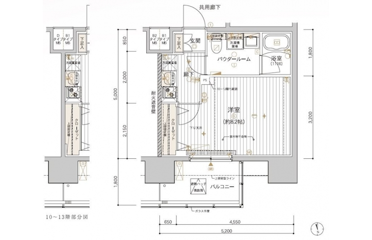
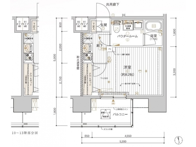
| 間取り | 1K | 間取り内訳 |
K 2 畳 洋室 8.2 畳 |
| 専有面積 | 26.00m² | バルコニー面積 | |
| 築年月(築年数) | 2019年11月(築6年) | 方位 | 北 |
| 建物構造 | RC(鉄筋コンクリート) | 所在階/階建 | 9階/13階建 |
| 総戸数 | 57戸 | 駐車場 | |
| 保険料 | 要 15,000円 2年 | 契約期間 | 2年間 |
| 引渡 | 即時 | ||
| 現況(予定年月) | 空室 | ||
| 管理 | 管理人/巡回、 | ||
| 設備・条件 | BSアンテナ、CSアンテナ、CATV、光ファイバー、オートロック、TVドアホン、防犯カメラ、宅配ボックス、駐輪場、エレベータ、デザイナーズ、2階以上、システムキッチン、バス・トイレ別、温水洗浄便座、浴室乾燥機、室内洗濯機置き場、フローリング、エアコン、バルコニー、分譲賃貸、礼金なし、敷金なし、ペット相談 | ||
| 備考 | 保証人代行:必須/賃料総額の50%~ | ||
| 周辺施設 |
エヌマート東日暮里店(距離:598m) ファミリーマート東日暮里六丁目店(距離:565m) ローソンストア100台東根岸店(距離:144m) マルエツプチ東日暮里店(距離:185m) どらっぐぱぱす東日暮里リーデンスタワー店(距離:238m) |
||
| 物件番号 | 65529 | 取引態様 | 仲介 |
| 情報更新日 | 2026年01月23日 | ||
| 次回更新予定日 | 情報更新日より15日以内 | ||

















COMMENTS FROM STAFFメインステージ東日暮里の
担当者コメント
東京の1人暮らしはアセットナビへ!自社ブランドマンションをはじめ、賃貸物件を数多くご紹介可能です。