エルデンシア南大泉 2階 | 2SLDK | 16万円
| 賃料 | 16万円 | 管理費・共益費 | 2万円 |
|---|---|---|---|
| 敷金/礼金 | なし / 1ヶ月 | 専有面積 | 60.40m² |
| 間取り | 2SLDK | 階建 | 2階/7階建 |
エルデンシア南大泉の詳細
| 賃料 | 16万円 | 管理費・共益費 | 2万円 |
|---|---|---|---|
| 敷金/保証金 | なし / | 礼金/償却・敷引 | 1ヶ月 / |
| 更新料 | 1ヶ月 | フリーレント | なし |
| その他費用 |
TFDclub:20,000円 鍵交換費用:27,500円 ルームクリーニング費用(退去時):77,000円 |
||
| 所在地 | 東京都練馬区南大泉1丁目 | ||
| 交通 |
西武鉄道新宿線「武蔵関」 徒歩14分 西武鉄道新宿線「東伏見」 徒歩22分 西武池袋・豊島線「保谷」 徒歩22分 |
||
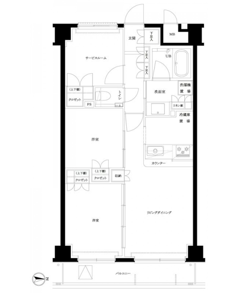
| 間取り | 2SLDK | 間取り内訳 |
洋室 5.6 畳 2 階 洋室 4.5 畳 2 階 洋室 4.5 畳 2 階 LDK 9.7 畳 2 階 |
| 専有面積 | 60.40m² | バルコニー面積 | |
| 築年月(築年数) | 2011年12月(築14年) | 方位 | 東 |
| 建物構造 | RC(鉄筋コンクリート) | 所在階/階建 | 2階/7階建 |
| 総戸数 | 66戸 | 駐車場 | 無 |
| 保険料 | 要 20,000円 2年 | 契約期間 | 2年間 |
| 引渡 | 2026年03月 | ||
| 現況(予定年月) | 賃貸中 | ||
| 管理 | 管理人/巡回、管理会社/(株)TFDコミュニティ | ||
| 設備・条件 | BSアンテナ、CSアンテナ、光ファイバー、オートロック、TVドアホン、防犯カメラ、ディンプルキー、ダブルロックキー、宅配ボックス、駐輪場、エレベータ、2階以上、カウンターキッチン、食洗機、バス・トイレ別、温水洗浄便座、浴室乾燥機、追い焚き、室内洗濯機置き場、フローリング、24時間換気システム、エアコン、バルコニー、分譲賃貸、敷金なし、ペット相談 | ||
| 備考 | 保証人代行:必須/初回保証料30%(家賃+管理費)年間保証料10,000円 ※学生初回保証料9,000円(学生契約可能) | ||
| 周辺施設 |
いなげや 練馬南大泉店(距離:233m) セブンイレブン 練馬南大泉富士街道店(距離:126m) ファミリーマート 関町庚申通り店(距離:536m) |
||
| 物件番号 | 67210 | 取引態様 | 仲介 |
| 情報更新日 | 2026年01月29日 | ||
| 次回更新予定日 | 情報更新日より15日以内 | ||















COMMENTS FROM STAFFエルデンシア南大泉の
担当者コメント
東京の1人暮らしはアセットナビへ!自社ブランドマンションをはじめ、賃貸物件を数多くご紹介可能です。