エルデンシア南大泉【満室】 *** | 2SLDK | ***
本情報は過去に掲載された物件の参考情報です。 最新の物件情報など詳細につきましてはお気軽にお問合せください。
| 賃料 | *** | 管理費・共益費 | *** |
|---|---|---|---|
| 敷金/礼金 | *** / *** | 専有面積 | 60.40m² |
| 間取り | 2SLDK | 階建 | ***/7階建 |
エルデンシア南大泉【満室】の詳細
| 賃料 | *** | 管理費・共益費 | *** |
|---|---|---|---|
| 敷金/保証金 | *** / *** | 礼金/償却・敷引 | *** / *** |
| 更新料 | *** | フリーレント | *** |
| その他費用 | *** | ||
| 所在地 | 東京都練馬区南大泉1丁目 | ||
| 交通 |
西武鉄道新宿線「武蔵関」 徒歩14分 西武鉄道新宿線「東伏見」 徒歩21分 西武池袋・豊島線「保谷」 徒歩22分 |
||
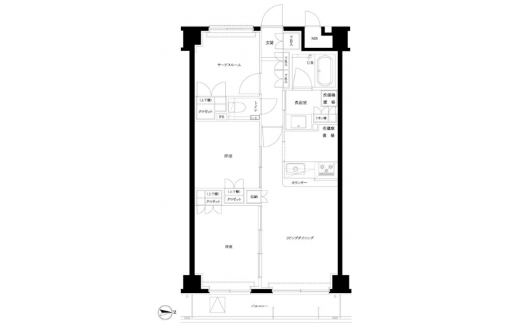
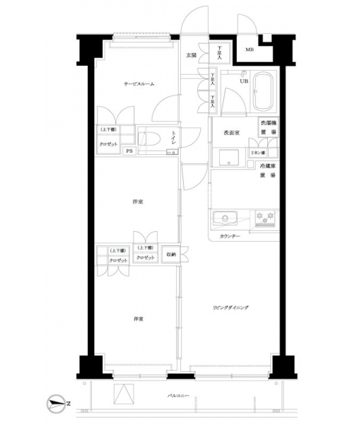
| 間取り | 2SLDK | 間取り内訳 |
洋室 5.6 畳 2 階 洋室 4.5 畳 2 階 洋室 4.5 畳 2 階 LDK 9.7 畳 2 階 |
| 専有面積 | 60.40m² | バルコニー面積 | |
| 築年月(築年数) | 2011年12月(築14年) | 方位 | 東 |
| 建物構造 | RC(鉄筋コンクリート) | 所在階/階建 | ***/7階建 |
| 総戸数 | 66戸 | 駐車場 | 無 |
| 保険料 | *** | 契約期間 | *** |
| 引渡 | 即時 | ||
| 現況(予定年月) | 空室 | ||
| 管理 | 管理人/巡回、管理会社/(株)TFDコミュニティ | ||
| 設備・条件 | BSアンテナ、CSアンテナ、光ファイバー、オートロック、TVドアホン、防犯カメラ、ディンプルキー、ダブルロックキー、宅配ボックス、駐輪場、エレベータ、2階以上、カウンターキッチン、食洗機、バス・トイレ別、温水洗浄便座、浴室乾燥機、追い焚き、室内洗濯機置き場、フローリング、24時間換気システム、エアコン、バルコニー、分譲賃貸、敷金なし、ペット相談 | ||
| 備考 | 保証人代行:必須/初回保証料30%(家賃+管理費)年間保証料10,000円 ※学生初回保証料9,000円 | ||
| 周辺施設 |
セブンイレブン 練馬南大泉富士街道店(距離:126m) いなげや 練馬南大泉店(距離:233m) ファミリーマート 関町庚申通り店(距離:536m) |
||
| 物件番号 | 48910 | 取引態様 | 仲介 |
| 情報更新日 | *** | ||
| 次回更新予定日 | 情報更新日より15日以内 | ||















COMMENTS FROM STAFFエルデンシア南大泉【満室】の
担当者コメント
東京の1人暮らしはアセットナビへ!自社ブランドマンションをはじめ、賃貸物件を数多くご紹介可能です。こちらの物件は、分譲賃貸マンションで設備が充実しております。オートロックシステムでセキュリティもバッチリです。