| 賃料 | 17.2万円 | 管理費・共益費 | 1.5万円 |
|---|---|---|---|
| 敷金/礼金 | なし / 1ヶ月 | 専有面積 | 41.30m² |
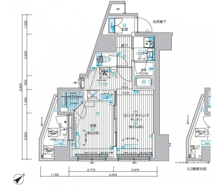
| 間取り | 1LDK | 階建 | 11階/12階建 |
【間取り】間取図
【トイレ】トイレ
【キッチン】キッチン
【リビング】リビング
【風呂】バス
【ベッドルーム】寝室
【玄関】玄関
【バルコニー・ベランダ】バルコニー
【収納】収納
【その他設備】設備
【その他】その他
【外観】外観・土地
【エントランス】ロビー
【エントランス】エントランス
【外観】外観・土地
【[その他]】まいばすけっと業平1丁目店 距離:704m
【[その他]】セブンイレブン向島店 距離:611m
【[その他]】コモディイイダ東向島店 距離:139m
【[その他]】イトーヨーカドー曳舟店 距離:847m
【[その他]】セブンイレブン墨田八広5丁目店 距離:1,617m
GoogleMapを読み込んでいます。
35.718494 139.813388
メインステージ押上Vの詳細
| 賃料 | 17.2万円 | 管理費・共益費 | 1.5万円 |
|---|---|---|---|
| 敷金/保証金 | なし / | 礼金/償却・敷引 | 1ヶ月 / |
| 更新料 | 1.5ヶ月 | フリーレント | なし |
| その他費用 |
AMLクラブサポート費:16,500円 鍵交換費用:29,700円 退去時クリーニング費用:55,000円 退去時エアコン清掃費:16,500円 |
||
| 所在地 | 東京都墨田区東向島1丁目 | ||
| 交通 |
東武伊勢崎・大師線「曳舟」 徒歩5分 京成電鉄押上線「京成曳舟」 徒歩7分 東武伊勢崎・大師線「東向島」 徒歩11分 |
||
| 間取り | 1LDK | 間取り内訳 |
LDK 10.4 畳 洋室 5.9 畳 |
| 専有面積 | 41.30m² | バルコニー面積 | |
| 築年月(築年数) | 2018年09月(築7年) | 方位 | 南西 |
| 建物構造 | RC(鉄筋コンクリート) | 所在階/階建 | 11階/12階建 |
| 総戸数 | 34戸 | 駐車場 | 無 |
| 保険料 | 要 20,000円 2年 | 契約期間 | 2年間 |
| 引渡 | 2026年03月 | ||
| 現況(予定年月) | 空室 | ||
| 管理 | |||
| 設備・条件 | BSアンテナ、CSアンテナ、CATV、光ファイバー、オートロック、TVドアホン、防犯カメラ、ディンプルキー、ダブルロックキー、宅配ボックス、バイク置き場、駐輪場、エレベータ、デザイナーズ、2階以上、角部屋、システムキッチン、バス・トイレ別、温水洗浄便座、浴室乾燥機、室内洗濯機置き場、フローリング、エアコン、ウォークインクローゼット、バルコニー、分譲賃貸、敷金なし、ペット相談 | ||
| 備考 | 保証人代行:必須/賃料総額の50%~ | ||
| 周辺施設 |
まいばすけっと業平1丁目店(距離:704m) セブンイレブン向島店(距離:611m) コモディイイダ東向島店(距離:139m) イトーヨーカドー曳舟店(距離:847m) セブンイレブン墨田八広5丁目店(距離:1,617m) |
||
| 物件番号 | 66248 | 取引態様 | 仲介 |
| 情報更新日 | 2026年02月07日 | ||
| 次回更新予定日 | 情報更新日より15日以内 | ||



















COMMENTS FROM STAFFメインステージ押上Vの
担当者コメント
東京の1人暮らしはアセットナビへ!自社ブランドマンションをはじめ、賃貸物件を数多くご紹介可能です。