本情報は過去に掲載された物件の参考情報です。 最新の物件情報など詳細につきましてはお気軽にお問合せください。
| 賃料 | *** | 管理費・共益費 | *** |
|---|---|---|---|
| 敷金/礼金 | *** / *** | 専有面積 | 41.30m² |
| 間取り | 1LDK | 階建 | ***/12階建 |
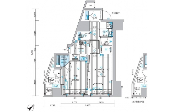
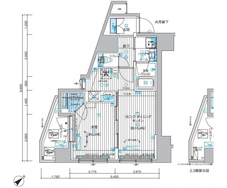
【間取り】間取図
【トイレ】トイレ
【キッチン】キッチン
【リビング】リビング
【風呂】バス
【ベッドルーム】寝室
【玄関】玄関
【バルコニー・ベランダ】バルコニー
【洗面所】
【収納】収納
【その他設備】設備
【その他】その他
【その他】
【外観】外観・土地
【エントランス】ロビー
【エントランス】エントランス
【外観】外観・土地
【[その他]】まいばすけっと業平1丁目店 距離:704m
【[その他]】セブンイレブン向島店 距離:611m
【[その他]】コモディイイダ東向島店 距離:139m
【[その他]】イトーヨーカドー曳舟店 距離:847m
【[その他]】セブンイレブン墨田八広5丁目店 距離:1,617m
GoogleMapを読み込んでいます。
35.718494 139.813388
メインステージ押上V【満室】の詳細
| 賃料 | *** | 管理費・共益費 | *** |
|---|---|---|---|
| 敷金/保証金 | *** / *** | 礼金/償却・敷引 | *** / *** |
| 更新料 | *** | フリーレント | *** |
| その他費用 | *** | ||
| 所在地 | 東京都墨田区東向島1丁目 | ||
| 交通 |
東武伊勢崎・大師線「曳舟」 徒歩7分 京成電鉄押上線「京成曳舟」 徒歩7分 東京地下鉄半蔵門線「押上」 徒歩18分 |
||
| 間取り | 1LDK | 間取り内訳 |
LDK 10.4 畳 洋室 5.9 畳 |
| 専有面積 | 41.30m² | バルコニー面積 | |
| 築年月(築年数) | 2018年09月(築7年) | 方位 | 南西 |
| 建物構造 | RC(鉄筋コンクリート) | 所在階/階建 | ***/12階建 |
| 総戸数 | 34戸 | 駐車場 | 無 |
| 保険料 | *** | 契約期間 | *** |
| 引渡 | 即時 | ||
| 現況(予定年月) | 空室 | ||
| 管理 | |||
| 設備・条件 | BSアンテナ、CSアンテナ、光ファイバー、オートロック、TVドアホン、防犯カメラ、ディンプルキー、ダブルロックキー、宅配ボックス、駐輪場、エレベータ、デザイナーズ、2階以上、角部屋、システムキッチン、バス・トイレ別、温水洗浄便座、浴室乾燥機、室内洗濯機置き場、フローリング、24時間換気システム、エアコン、ウォークインクローゼット、バルコニー、分譲賃貸、礼金なし、敷金なし、ペット相談 | ||
| 備考 | 保証人代行:必須/賃料総額の50%~ | ||
| 周辺施設 |
まいばすけっと業平1丁目店(距離:704m) セブンイレブン向島店(距離:611m) コモディイイダ東向島店(距離:139m) イトーヨーカドー曳舟店(距離:847m) セブンイレブン墨田八広5丁目店(距離:1,617m) |
||
| 物件番号 | 51461 | 取引態様 | 仲介 |
| 情報更新日 | *** | ||
| 次回更新予定日 | 情報更新日より15日以内 | ||




















COMMENTS FROM STAFFメインステージ押上V【満室】の
担当者コメント
東京の1人暮らしはアセットナビへ!自社ブランドマンションをはじめ、賃貸物件を数多くご紹介可能です。サマーキャンペーン実施中!ご来店のお客様・先着25名にハーゲンダッツギフト券をプレゼント。詳しくはスタッフまでお問い合わせください。