ルーブル東矢口【満室】 *** | 1K | ***
本情報は過去に掲載された物件の参考情報です。 最新の物件情報など詳細につきましてはお気軽にお問合せください。
| 賃料 | *** | 管理費・共益費 | *** |
|---|---|---|---|
| 敷金/礼金 | *** / *** | 専有面積 | 25.52m² |
| 間取り | 1K | 階建 | ***/6階建 |
ルーブル東矢口【満室】の詳細
| 賃料 | *** | 管理費・共益費 | *** |
|---|---|---|---|
| 敷金/保証金 | *** / *** | 礼金/償却・敷引 | *** / *** |
| 更新料 | *** | フリーレント | *** |
| その他費用 | *** | ||
| 所在地 | 東京都大田区東矢口3丁目 | ||
| 交通 |
東急多摩川線「矢口渡」 徒歩5分 東急池上線「蓮沼」 徒歩7分 京浜東北・根岸線「蒲田」 徒歩14分 |
||
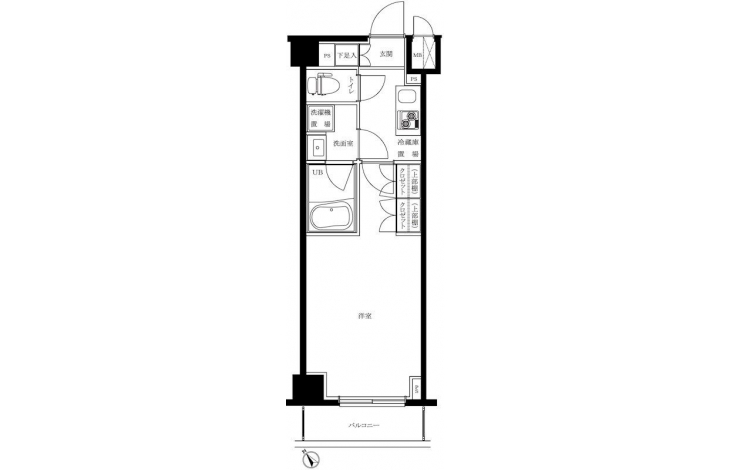
| 間取り | 1K | 間取り内訳 |
洋室 7 畳 2 階 K 1.5 畳 2 階 |
| 専有面積 | 25.52m² | バルコニー面積 | |
| 築年月(築年数) | 2017年03月(築8年) | 方位 | 南西 |
| 建物構造 | RC(鉄筋コンクリート) | 所在階/階建 | ***/6階建 |
| 総戸数 | 55戸 | 駐車場 | |
| 保険料 | *** | 契約期間 | *** |
| 引渡 | 2026年02月 | ||
| 現況(予定年月) | 賃貸中 | ||
| 管理 | |||
| 設備・条件 | 光ファイバー、オートロック、TVドアホン、ディンプルキー、ダブルロックキー、宅配ボックス、駐輪場、エレベータ、2階以上、システムキッチン、バス・トイレ別、温水洗浄便座、浴室乾燥機、室内洗濯機置き場、洗濯機置き場有、フローリング、24時間換気システム、エアコン、バルコニー、分譲賃貸、敷金なし、ペット不可 | ||
| 備考 | 保証人代行:必須/総賃料30%~ | ||
| 周辺施設 |
ファミリーマート 大田東矢口三丁目店(距離:307m) セブンイレブン 矢口渡駅前店(距離:269m) ミツワ薬局(距離:327m) まいばすけっと 矢口渡駅北店(距離:352m) 西友 矢口ノ渡店(距離:552m) |
||
| 物件番号 | 65871 | 取引態様 | 仲介 |
| 情報更新日 | *** | ||
| 次回更新予定日 | 情報更新日より15日以内 | ||





















COMMENTS FROM STAFFルーブル東矢口【満室】の
担当者コメント
東京の1人暮らしはアセットナビへ!自社ブランドマンションをはじめ、賃貸物件を数多くご紹介可能です。3,000円キャッシュバックキャンペーン実施中。オンライン接客のお客様にAmazonギフト券3,000円分をプレゼント。詳しくはスタッフまでお問い合わせください。