| 賃料 | 12.6万円 | 管理費・共益費 | 1.2万円 |
|---|---|---|---|
| 敷金/礼金 | 1ヶ月 / 1ヶ月 | 専有面積 | 25.79m² |
| 間取り | 1K | 階建 | 8階/11階建 |
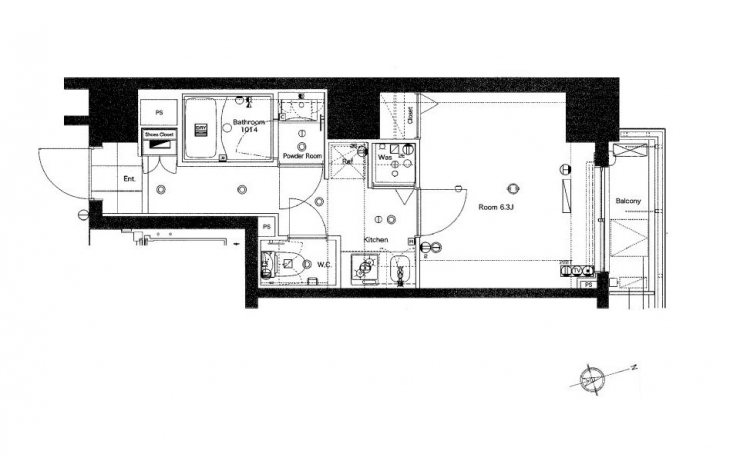
【間取り】
【リビング】※別タイプの参考画像になります。
【キッチン】※別タイプの参考画像になります。
【風呂】※別タイプの参考画像になります。
【トイレ】※別タイプの参考画像になります。
【洗面所】※別タイプの参考画像になります。
【ベッドルーム】※別タイプの参考画像になります。
【玄関】※別タイプの参考画像になります。
【収納】※別タイプの参考画像になります。
【その他設備】※別タイプの参考画像になります。
【バルコニー・ベランダ】※別タイプの参考画像になります。
【外観】
【エントランス】
【エントランス】
【共用設備】
GoogleMapを読み込んでいます。
35.696671 139.708370
メイクスデザイン東新宿の詳細
| 賃料 | 12.6万円 | 管理費・共益費 | 1.2万円 |
|---|---|---|---|
| 敷金/保証金 | 1ヶ月 / | 礼金/償却・敷引 | 1ヶ月 / |
| 更新料 | 1ヶ月 | フリーレント | なし |
| その他費用 |
退去時クリーニング費用:55,000円 室内除菌消臭代:8,800円 鍵交換費用:35,200円 エアコンクリーニング:14,300円 |
||
| 所在地 | 東京都新宿区新宿6丁目 | ||
| 交通 |
東京地下鉄副都心線「東新宿」 徒歩2分 都営大江戸線「若松河田」 徒歩11分 東京地下鉄丸ノ内線「新宿三丁目」 徒歩14分 |
||
| 間取り | 1K | 間取り内訳 |
洋室 6.3 畳 洋室 6.3 畳 |
| 専有面積 | 25.79m² | バルコニー面積 | |
| 築年月(築年数) | 2014年07月(築11年) | 方位 | 北 |
| 建物構造 | RC(鉄筋コンクリート) | 所在階/階建 | 8階/11階建 |
| 総戸数 | 21戸 | 駐車場 | |
| 保険料 | 要 20,000円 2年 | 契約期間 | 2年間 |
| 引渡 | 2026年03月 | ||
| 現況(予定年月) | 居住中 | ||
| 管理 | |||
| 設備・条件 | オートロック、防犯カメラ、ディンプルキー、ダブルロックキー、宅配ボックス、エレベータ、2階以上、角部屋、システムキッチン、バス・トイレ別、温水洗浄便座、浴室乾燥機、室内洗濯機置き場、洗濯機置き場有、フローリング、エアコン | ||
| 備考 | 保証人代行:必須/総賃料40%、保証料(年間)10,000円、その他プラン有(新日本信用保証の場合 口座振替手数料216円(税込)/月) | ||
| 周辺施設 |
ポプラ 東大久保店(距離:41m) maruetsu(マルエツ) 新宿六丁目店(距離:328m) ファミリーマート 新宿七丁目店(距離:286m) |
||
| 物件番号 | 20332 | 取引態様 | 仲介 |
| 情報更新日 | 2026年02月09日 | ||
| 次回更新予定日 | 情報更新日より15日以内 | ||

















COMMENTS FROM STAFFメイクスデザイン東新宿の
担当者コメント
東京の1人暮らしはアセットナビへ!自社ブランドマンションをはじめ、賃貸物件を数多くご紹介可能です。こちらの物件は、分譲賃貸マンションで設備が充実しております。オートロックシステムでセキュリティもバッチリです。快適な独立洗面台つき。いつでも荷物が受け取れる宅配ボックス。雨の日でも洗濯物が干せる浴室乾燥機。お手入れラクラク温水洗浄便座。