ルーブル方南町弐番館 4階 | 1K | 11万円
| 賃料 | 11万円 | 管理費・共益費 | 0.8万円 |
|---|---|---|---|
| 敷金/礼金 | なし / 1ヶ月 | 専有面積 | 25.57m² |
| 間取り | 1K | 階建 | 4階/9階建 |
ルーブル方南町弐番館の詳細
| 賃料 | 11万円 | 管理費・共益費 | 0.8万円 |
|---|---|---|---|
| 敷金/保証金 | なし / | 礼金/償却・敷引 | 1ヶ月 / |
| 更新料 | 1ヶ月 | フリーレント | なし |
| その他費用 |
鍵交換費用:27,500円 24時間サポート:17,000円 クリーニング費用:55,000円 |
||
| 所在地 | 東京都杉並区堀ノ内1丁目 | ||
| 交通 |
東京地下鉄方南支線「方南町」 徒歩3分 京王電鉄井の頭線「永福町」 徒歩20分 東京地下鉄方南支線「中野富士見町」 徒歩18分 |
||
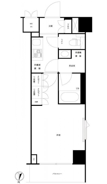
| 間取り | 1K | 間取り内訳 |
K 2 畳 洋室 7.5 畳 |
| 専有面積 | 25.57m² | バルコニー面積 | |
| 築年月(築年数) | 2018年09月(築7年) | 方位 | 北 |
| 建物構造 | RC(鉄筋コンクリート) | 所在階/階建 | 4階/9階建 |
| 総戸数 | 68戸 | 駐車場 | 無 |
| 保険料 | 要 18,000円 2年 | 契約期間 | 2年間 |
| 引渡 | 2026年03月 | ||
| 現況(予定年月) | 居住中 | ||
| 管理 | 管理人/巡回、 | ||
| 設備・条件 | BSアンテナ、CSアンテナ、光ファイバー、オートロック、TVドアホン、防犯カメラ、宅配ボックス、駐輪場、エレベータ、2階以上、システムキッチン、バス・トイレ別、温水洗浄便座、浴室乾燥機、室内洗濯機置き場、フローリング、エアコン、バルコニー、分譲賃貸、敷金なし | ||
| 備考 | 保証人代行:必須/賃料総額の30%~ | ||
| 周辺施設 |
サミットストア和泉店(距離:373m) サンクス杉並和泉店(距離:351m) ファミリーマート 杉並堀の内店(距離:163m) |
||
| 物件番号 | 66484 | 取引態様 | 仲介 |
| 情報更新日 | 2025年12月27日 | ||
| 次回更新予定日 | 情報更新日より15日以内 | ||




















COMMENTS FROM STAFFルーブル方南町弐番館の
担当者コメント
東京の1人暮らしはアセットナビへ!自社ブランドマンションをはじめ、賃貸物件を数多くご紹介可能です。こちらの物件は、分譲賃貸マンションで設備が充実しております。オートロックシステムでセキュリティもバッチリです。