フェニックス・エルミタージュ【満室】 *** | 1K | ***
本情報は過去に掲載された物件の参考情報です。 最新の物件情報など詳細につきましてはお気軽にお問合せください。
| 賃料 | *** | 管理費・共益費 | *** |
|---|---|---|---|
| 敷金/礼金 | *** / *** | 専有面積 | 22.55m² |
| 間取り | 1K | 階建 | ***/6階建 |
フェニックス・エルミタージュ【満室】の詳細
| 賃料 | *** | 管理費・共益費 | *** |
|---|---|---|---|
| 敷金/保証金 | *** / *** | 礼金/償却・敷引 | *** / *** |
| 更新料 | *** | フリーレント | *** |
| その他費用 | *** | ||
| 所在地 | 東京都大田区鵜の木3丁目 | ||
| 交通 |
東急多摩川線「鵜の木」 徒歩4分 東急池上線「久が原」 徒歩12分 東急多摩川線「下丸子」 徒歩13分 |
||
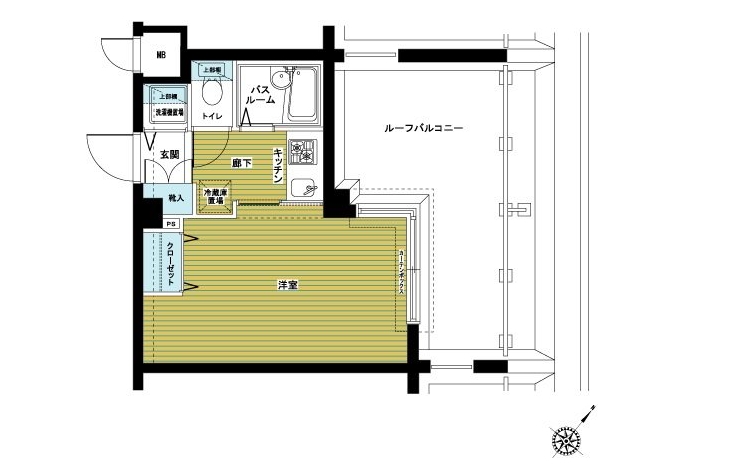
| 間取り | 1K | 間取り内訳 |
K 1.5 畳 洋室 7 畳 |
| 専有面積 | 22.55m² | バルコニー面積 | |
| 築年月(築年数) | 2004年10月(築21年) | 方位 | 北東 |
| 建物構造 | RC(鉄筋コンクリート) | 所在階/階建 | ***/6階建 |
| 総戸数 | 71戸 | 駐車場 | |
| 保険料 | *** | 契約期間 | *** |
| 引渡 | 即時 | ||
| 現況(予定年月) | 空室 | ||
| 管理 | 管理人/巡回、 | ||
| 設備・条件 | オートロック、防犯カメラ、ダブルロックキー、宅配ボックス、バイク置き場、駐輪場、エレベータ、デザイナーズ、システムキッチン、バス・トイレ別、浴室乾燥機、室内洗濯機置き場、フローリング、24時間換気システム、エアコン、ルーフバルコニー、分譲賃貸 | ||
| 備考 | 保証人代行:必須/トーシンライフサポート、他 家賃総額の50%、月額:家賃総額の1% | ||
| 周辺施設 |
ライフ 鵜の木店(距離:65m) セブンイレブン 大田区鵜の木2丁目店(距離:172m) まいばすけっと 鵜の木2丁目店(距離:254m) ファミリーマート 鵜の木多摩堤通り店(距離:273m) スギ薬局 大田鵜の木店(距離:534m) |
||
| 物件番号 | 19346 | 取引態様 | 代理 |
| 情報更新日 | *** | ||
| 次回更新予定日 | 情報更新日より15日以内 | ||




















COMMENTS FROM STAFFフェニックス・エルミタージュ【満室】の
担当者コメント
東京の1人暮らしはアセットナビへ!自社ブランドマンションをはじめ、賃貸物件を数多くご紹介可能です。こちらの物件は、分譲賃貸マンションで設備が充実しております。オートロックシステムでセキュリティもバッチリです。人気のルーフバルコニーつき。