メインステージ菊川II【満室】 *** | 1LDK | ***
本情報は過去に掲載された物件の参考情報です。 最新の物件情報など詳細につきましてはお気軽にお問合せください。
| 賃料 | *** | 管理費・共益費 | *** |
|---|---|---|---|
| 敷金/礼金 | *** / *** | 専有面積 | 41.66m² |
| 間取り | 1LDK | 階建 | ***/8階建 |
メインステージ菊川II【満室】の詳細
| 賃料 | *** | 管理費・共益費 | *** |
|---|---|---|---|
| 敷金/保証金 | *** / *** | 礼金/償却・敷引 | *** / *** |
| 更新料 | *** | フリーレント | *** |
| その他費用 | *** | ||
| 所在地 | 東京都墨田区立川4丁目 | ||
| 交通 |
都営新宿線「菊川(東京)」 徒歩4分 東京地下鉄半蔵門線「住吉(東京)」 徒歩15分 都営大江戸線「森下(東京)」 徒歩14分 |
||
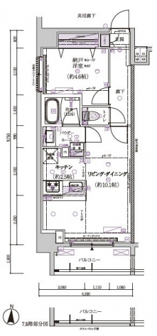
| 間取り | 1LDK | 間取り内訳 |
LDK 12.6 畳 洋室 4.6 畳 |
| 専有面積 | 41.66m² | バルコニー面積 | |
| 築年月(築年数) | 2016年06月(築9年) | 方位 | 南 |
| 建物構造 | RC(鉄筋コンクリート) | 所在階/階建 | ***/8階建 |
| 総戸数 | 43戸 | 駐車場 | 無 |
| 保険料 | *** | 契約期間 | *** |
| 引渡 | 即時 | ||
| 現況(予定年月) | 空室 | ||
| 管理 | 管理人/巡回、 | ||
| 設備・条件 | BSアンテナ、CSアンテナ、オートロック、TVドアホン、防犯カメラ、ディンプルキー、ダブルロックキー、宅配ボックス、バイク置き場、駐輪場、エレベータ、デザイナーズ、閑静な住宅街、2階以上、角部屋、システムキッチン、カウンターキッチン、バス・トイレ別、温水洗浄便座、浴室乾燥機、室内洗濯機置き場、洗濯機置き場有、フローリング、24時間換気システム、エアコン、バルコニー、分譲賃貸、日当たり良好、敷金なし、ペット相談 | ||
| 備考 | 保証人代行:必須/賃料総額の50%~ | ||
| 周辺施設 |
肉のハナマサ住吉店(距離:427m) ファミリーマート江東橋二丁目店(距離:755m) タカキュー丸井錦糸町店(距離:1,156m) GAPストア丸井錦糸町店(距離:1,165m) まいばすけっと錦糸町駅西店(距離:826m) ローソン住吉一丁目店(距離:670m) |
||
| 物件番号 | 51981 | 取引態様 | 仲介 |
| 情報更新日 | *** | ||
| 次回更新予定日 | 情報更新日より15日以内 | ||




















COMMENTS FROM STAFFメインステージ菊川II【満室】の
担当者コメント
東京の1人暮らしはアセットナビへ!自社ブランドマンションをはじめ、賃貸物件を数多くご紹介可能です。こちらの物件は、分譲賃貸マンションで設備が充実しております。オートロックシステムでセキュリティもバッチリです。