ランドステージ日暮里【満室】 *** | 1K | ***
本情報は過去に掲載された物件の参考情報です。 最新の物件情報など詳細につきましてはお気軽にお問合せください。
| 賃料 | *** | 管理費・共益費 | *** |
|---|---|---|---|
| 敷金/礼金 | *** / *** | 専有面積 | 28.71m² |
| 間取り | 1K | 階建 | ***/10階建 |
ランドステージ日暮里【満室】の詳細
| 賃料 | *** | 管理費・共益費 | *** |
|---|---|---|---|
| 敷金/保証金 | *** / *** | 礼金/償却・敷引 | *** / *** |
| 更新料 | *** | フリーレント | *** |
| その他費用 | *** | ||
| 所在地 | 東京都荒川区東日暮里6丁目 | ||
| 交通 |
山手線「日暮里」 徒歩6分 京成電鉄本線「新三河島」 徒歩6分 山手線「鶯谷」 徒歩14分 |
||
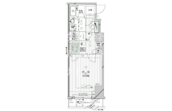
| 間取り | 1K | 間取り内訳 |
K 2 畳 洋室 9.9 畳 |
| 専有面積 | 28.71m² | バルコニー面積 | |
| 築年月(築年数) | 2011年03月(築14年) | 方位 | 北 |
| 建物構造 | RC(鉄筋コンクリート) | 所在階/階建 | ***/10階建 |
| 総戸数 | 駐車場 | 無 | |
| 保険料 | *** | 契約期間 | *** |
| 引渡 | 即時 | ||
| 現況(予定年月) | 空室 | ||
| 管理 | |||
| 設備・条件 | BSアンテナ、CSアンテナ、光ファイバー、オートロック、TVドアホン、防犯カメラ、ディンプルキー、宅配ボックス、エレベータ、角部屋、システムキッチン、バス・トイレ別、温水洗浄便座、浴室乾燥機、室内洗濯機置き場、フローリング、エアコン、バルコニー、分譲賃貸、敷金なし、ペット相談 | ||
| 備考 | 保証人代行:必須/総賃料の50%~ | ||
| 周辺施設 |
どらっぐぱぱす 西日暮里店(距離:387m) まいばすけっと 三河島駅前店(距離:460m) いなげや 荒川西日暮里店(距離:459m) マツモトキヨシ 三河島駅前店(距離:481m) ファミリーマート 西日暮里二丁目店(距離:537m) |
||
| 物件番号 | 53201 | 取引態様 | 仲介 |
| 情報更新日 | *** | ||
| 次回更新予定日 | 情報更新日より15日以内 | ||


















COMMENTS FROM STAFFランドステージ日暮里【満室】の
担当者コメント
東京の1人暮らしはアセットナビへ!自社ブランドマンションをはじめ、賃貸物件を数多くご紹介可能です。こちらの物件は、分譲賃貸マンションで設備が充実しております。オートロックシステムでセキュリティもバッチリです。