ランドステージ日暮里【満室】 *** | 1K | ***
本情報は過去に掲載された物件の参考情報です。 最新の物件情報など詳細につきましてはお気軽にお問合せください。
| 賃料 | *** | 管理費・共益費 | *** |
|---|---|---|---|
| 敷金/礼金 | *** / *** | 専有面積 | 28.36m² |
| 間取り | 1K | 階建 | ***/10階建 |
ランドステージ日暮里【満室】の詳細
| 賃料 | *** | 管理費・共益費 | *** |
|---|---|---|---|
| 敷金/保証金 | *** / *** | 礼金/償却・敷引 | *** / *** |
| 更新料 | *** | フリーレント | *** |
| その他費用 | *** | ||
| 所在地 | 東京都荒川区東日暮里6丁目 | ||
| 交通 |
山手線「西日暮里」 徒歩6分 京成電鉄本線「新三河島」 徒歩8分 常磐線「三河島」 徒歩6分 |
||
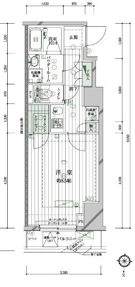
| 間取り | 1K | 間取り内訳 |
K 2 畳 洋室 8.5 畳 |
| 専有面積 | 28.36m² | バルコニー面積 | |
| 築年月(築年数) | 2011年03月(築14年) | 方位 | 北 |
| 建物構造 | RC(鉄筋コンクリート) | 所在階/階建 | ***/10階建 |
| 総戸数 | 駐車場 | 無 | |
| 保険料 | *** | 契約期間 | *** |
| 引渡 | 2023年07月 | ||
| 現況(予定年月) | 居住中 | ||
| 管理 | 管理人/日勤、 | ||
| 設備・条件 | BSアンテナ、光ファイバー、オートロック、TVドアホン、防犯カメラ、ディンプルキー、ダブルロックキー、宅配ボックス、バイク置き場、駐輪場、エレベータ、システムキッチン、バス・トイレ別、温水洗浄便座、浴室乾燥機、室内洗濯機置き場、フローリング、エアコン、ウォークインクローゼット、バルコニー、分譲賃貸、礼金なし、敷金なし、ペット相談 | ||
| 備考 | 保証人代行:必須/総賃料の50%~ | ||
| 周辺施設 |
まいばすけっと西日暮里6丁目店(距離:266m) まいばすけっと冠新道店(距離:295m) セブンイレブン西日暮里六丁目店(距離:250m) ヤマザキデイリーストアー西日暮里店(距離:361m) |
||
| 物件番号 | 17397 | 取引態様 | 仲介 |
| 情報更新日 | *** | ||
| 次回更新予定日 | 情報更新日より15日以内 | ||



















COMMENTS FROM STAFFランドステージ日暮里【満室】の
担当者コメント
敷金礼金ゼロで初期費用が抑えられます/分譲賃貸マンション/オートロックシステムでセキュリティバッチリ/いつでも荷物が受け取れる宅配ボックス/可愛いペットと一緒に暮らせます/日暮里駅徒歩6分の好立地/浴室乾燥機つきで雨の日でも洗濯可/快適な独立洗面化粧台つき/周辺施設充実