| 賃料 | 7.6万円 | 管理費・共益費 | 0.4万円 |
|---|---|---|---|
| 敷金/礼金 | 1ヶ月 / 2ヶ月 | 専有面積 | 25.14m² |
| 間取り | 1K | 階建 | 2階/3階建 |
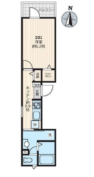
【間取り】
【その他】
【キッチン】
【リビング】
【風呂】
【バルコニー・ベランダ】
【収納】
【洗面所】
【その他設備】
【トイレ】
【その他部屋・スペース】
【その他設備】
【その他設備】
【外観】
【その他共有部分】
【セキュリティ】
【スーパー】ライフ 東府中店 距離:435m
【スーパー】サミットストア 東府中店 距離:588m
【コンビ二】セブンイレブン 府中緑町3丁目店 距離:179m
【コンビ二】セブンイレブン 府中緑町2丁目店 距離:472m
【ドラックストア】マツモトキヨシ 東府中駅店 距離:625m
GoogleMapを読み込んでいます。
35.671719 139.493010
カルム府中の森の詳細
| 賃料 | 7.6万円 | 管理費・共益費 | 0.4万円 |
|---|---|---|---|
| 敷金/保証金 | 1ヶ月 / | 礼金/償却・敷引 | 2ヶ月 / |
| 更新料 | 1ヶ月 | フリーレント | なし |
| その他費用 |
鍵交換代:27,500円 害虫防御費用:16,500円 クリーニング:57,860円 |
||
| 所在地 | 東京都府中市緑町3丁目 | ||
| 交通 |
京王電鉄京王線「東府中」 徒歩8分 京王電鉄京王線「府中(東京)」 徒歩18分 京王電鉄京王線「府中競馬正門前」 徒歩15分 |
||
| 間取り | 1K | 間取り内訳 |
洋室 6.2 畳 K 0.9 畳 |
| 専有面積 | 25.14m² | バルコニー面積 | |
| 築年月(築年数) | 2022年02月(築4年) | 方位 | 北 |
| 建物構造 | 軽量鉄骨 | 所在階/階建 | 2階/3階建 |
| 総戸数 | 5戸 | 駐車場 | 無 |
| 保険料 | 要 17,900円 2年 | 契約期間 | 2年間 |
| 引渡 | 2026年03月 | ||
| 現況(予定年月) | 賃貸中 | ||
| 管理 | |||
| 設備・条件 | BSアンテナ、CSアンテナ、TVドアホン、ディンプルキー、宅配ボックス、駐輪場、2階以上、システムキッチン、バス・トイレ別、温水洗浄便座、浴室乾燥機、室内洗濯機置き場、洗濯機置き場有、フローリング、エアコン、バルコニー | ||
| 備考 | 保証人代行:必須/利用必須初回保証加入料:月支払総額の50%(家賃・共益費・駐車場等の付帯料含む)/月額事務手数料:月々のご請求金額の2%(消費税込、契約更新月は更新料含む) | ||
| 周辺施設 |
ライフ 東府中店(距離:435m) サミットストア 東府中店(距離:588m) セブンイレブン 府中緑町3丁目店(距離:179m) セブンイレブン 府中緑町2丁目店(距離:472m) マツモトキヨシ 東府中駅店(距離:625m) |
||
| 物件番号 | 67367 | 取引態様 | 仲介 |
| 情報更新日 | 2026年02月05日 | ||
| 次回更新予定日 | 情報更新日より15日以内 | ||















COMMENTS FROM STAFFカルム府中の森の
担当者コメント
東京の一人暮らしはアセットナビへ!自社ブランドをはじめ、賃貸物件も数多くご紹介可能です。こちらの物件は、賃貸アパートで設備充実。雨の日でも洗濯物が干せる浴室乾燥機。お手入れラクラク温水洗浄便座。快適な独立洗面台つき。いつでも荷物が受け取れる宅配ボックス。