メインステージ赤塚【満室】 *** | 1K | ***
本情報は過去に掲載された物件の参考情報です。 最新の物件情報など詳細につきましてはお気軽にお問合せください。
| 賃料 | *** | 管理費・共益費 | *** |
|---|---|---|---|
| 敷金/礼金 | *** / *** | 専有面積 | 20.04m² |
| 間取り | 1K | 階建 | ***/6階建 |
メインステージ赤塚【満室】の詳細
| 賃料 | *** | 管理費・共益費 | *** |
|---|---|---|---|
| 敷金/保証金 | *** / *** | 礼金/償却・敷引 | *** / *** |
| 更新料 | *** | フリーレント | *** |
| その他費用 | *** | ||
| 所在地 | 東京都板橋区赤塚2丁目 | ||
| 交通 |
東京地下鉄副都心線「地下鉄赤塚」 徒歩6分 東武鉄道東上線「下赤塚」 徒歩9分 東京地下鉄有楽町線「地下鉄成増」 徒歩14分 |
||
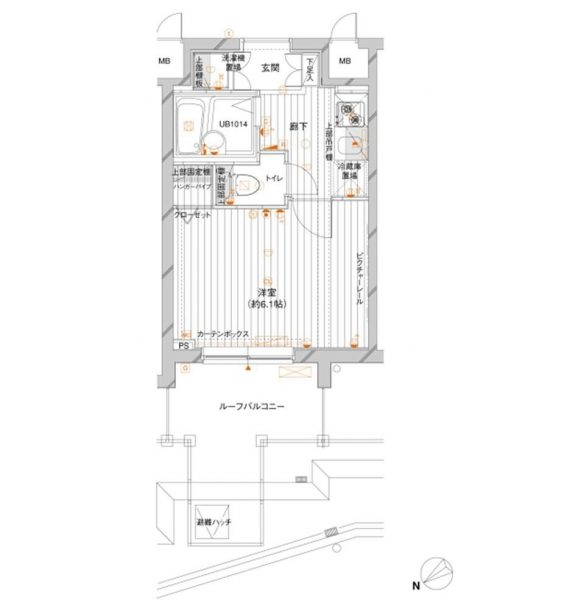
| 間取り | 1K | 間取り内訳 |
洋室 6.1 畳 |
| 専有面積 | 20.04m² | バルコニー面積 | |
| 築年月(築年数) | 2008年07月(築17年) | 方位 | 北西 |
| 建物構造 | RC(鉄筋コンクリート) | 所在階/階建 | ***/6階建 |
| 総戸数 | 83戸 | 駐車場 | |
| 保険料 | *** | 契約期間 | *** |
| 引渡 | 2024年03月 | ||
| 現況(予定年月) | 賃貸中 | ||
| 管理 | 管理人/巡回、 | ||
| 設備・条件 | BSアンテナ、CSアンテナ、CATV、オートロック、TVドアホン、防犯カメラ、宅配ボックス、駐輪場、エレベータ、デザイナーズ、2階以上、システムキッチン、バス・トイレ別、浴室乾燥機、室内洗濯機置き場、フローリング、24時間換気システム、エアコン、ルーフバルコニー、分譲賃貸、礼金なし、敷金なし | ||
| 備考 | 保証人代行:必須/エポスカード、家賃総額の50%~ | ||
| 周辺施設 |
アコレ 赤塚新町店(距離:332m) コモディイイダ赤塚新町店(距離:550m) セブンイレブン 板橋赤塚新町2丁目店(距離:391m) ファミリーマート 板橋赤塚新町三丁目店(距離:397m) どらっぐぱぱす 赤塚新町店(距離:542m) |
||
| 物件番号 | 44603 | 取引態様 | 仲介 |
| 情報更新日 | *** | ||
| 次回更新予定日 | 情報更新日より15日以内 | ||




















COMMENTS FROM STAFFメインステージ赤塚【満室】の
担当者コメント
東京の1人暮らしはアセットナビへ!自社ブランドマンションをはじめ、賃貸物件を数多くご紹介可能です。こちらの物件は、分譲賃貸マンションで設備が充実しております。オートロックシステムでセキュリティもバッチリです。