本情報は過去に掲載された物件の参考情報です。 最新の物件情報など詳細につきましてはお気軽にお問合せください。
| 賃料 | *** | 管理費・共益費 | *** |
|---|---|---|---|
| 敷金/礼金 | *** / *** | 専有面積 | 41.33m² |
| 間取り | 1LDK | 階建 | ***/10階建 |
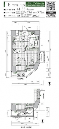
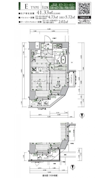
【間取り】
【キッチン】※別部屋参考画像
【リビング】※別部屋参考画像
【風呂】※別部屋参考画像
【その他部屋・スペース】※別部屋参考画像
【玄関】※別部屋参考画像
【バルコニー・ベランダ】※別部屋参考画像
【トイレ】※別部屋参考画像
【洗面所】※別部屋参考画像
【収納】※別部屋参考画像
【その他】※別部屋参考画像
【外観】
【エントランス】
【その他共有部分】
【コンビ二】セブンイレブン 墨田四ツ木橋南店 距離:159m
【コンビ二】セブンイレブン 墨田4丁目店 距離:218m
【スーパー】まいばすけっと 鐘ヶ淵駅南店 距離:260m
【ドラックストア】くすりの福太郎 八広駅前店 距離:519m
【スーパー】まいばすけっと 東向島駅北店 距離:497m
GoogleMapを読み込んでいます。
35.729453 139.824334
メインステージ東向島II【満室】の詳細
| 賃料 | *** | 管理費・共益費 | *** |
|---|---|---|---|
| 敷金/保証金 | *** / *** | 礼金/償却・敷引 | *** / *** |
| 更新料 | *** | フリーレント | *** |
| その他費用 | *** | ||
| 所在地 | 東京都墨田区墨田4丁目 | ||
| 交通 |
京成電鉄押上線「八広」 徒歩9分 東武伊勢崎・大師線「東向島」 徒歩9分 東武伊勢崎・大師線「鐘ヶ淵」 徒歩9分 |
||
| 間取り | 1LDK | 間取り内訳 |
LDK 10.4 畳 洋室 5.8 畳 |
| 専有面積 | 41.33m² | バルコニー面積 | |
| 築年月(築年数) | 2023年09月(築2年) | 方位 | 北 |
| 建物構造 | RC(鉄筋コンクリート) | 所在階/階建 | ***/10階建 |
| 総戸数 | 駐車場 | ||
| 保険料 | *** | 契約期間 | *** |
| 引渡 | 2025年09月 | ||
| 現況(予定年月) | 空室 | ||
| 管理 | |||
| 設備・条件 | BSアンテナ、CSアンテナ、光ファイバー、オートロック、TVドアホン、防犯カメラ、ディンプルキー、ダブルロックキー、宅配ボックス、エレベータ、デザイナーズ、2階以上、システムキッチン、カウンターキッチン、バス・トイレ別、温水洗浄便座、浴室乾燥機、室内洗濯機置き場、洗濯機置き場有、フローリング、24時間換気システム、エアコン、バルコニー、分譲賃貸、礼金なし、敷金なし、ペット相談 | ||
| 備考 | 保証人代行:必須/賃料総額の50%~ | ||
| 周辺施設 |
セブンイレブン 墨田四ツ木橋南店(距離:159m) セブンイレブン 墨田4丁目店(距離:218m) まいばすけっと 鐘ヶ淵駅南店(距離:260m) くすりの福太郎 八広駅前店(距離:519m) まいばすけっと 東向島駅北店(距離:497m) |
||
| 物件番号 | 62229 | 取引態様 | 仲介 |
| 情報更新日 | *** | ||
| 次回更新予定日 | 情報更新日より15日以内 | ||




















COMMENTS FROM STAFFメインステージ東向島II【満室】の
担当者コメント
東京の1人暮らしはアセットナビへ!自社ブランドマンションをはじめ、賃貸物件を数多くご紹介可能です。こちらの物件は、分譲賃貸マンションで設備が充実しております。オートロックシステムでセキュリティもバッチリです。