ルーブル下丸子【満室】 *** | 2DK | ***
本情報は過去に掲載された物件の参考情報です。 最新の物件情報など詳細につきましてはお気軽にお問合せください。
| 賃料 | *** | 管理費・共益費 | *** |
|---|---|---|---|
| 敷金/礼金 | *** / *** | 専有面積 | 40.97m² |
| 間取り | 2DK | 階建 | ***/7階建 |
ルーブル下丸子【満室】の詳細
| 賃料 | *** | 管理費・共益費 | *** |
|---|---|---|---|
| 敷金/保証金 | *** / *** | 礼金/償却・敷引 | *** / *** |
| 更新料 | *** | フリーレント | *** |
| その他費用 | *** | ||
| 所在地 | 東京都大田区下丸子2丁目 | ||
| 交通 |
東急多摩川線「武蔵新田」 徒歩8分 東急多摩川線「下丸子」 徒歩13分 東急池上線「千鳥町」 徒歩17分 |
||
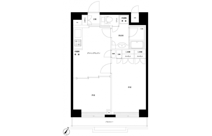
| 間取り | 2DK | 間取り内訳 |
DK 6.5 畳 洋室 7 畳 洋室 4.5 畳 |
| 専有面積 | 40.97m² | バルコニー面積 | |
| 築年月(築年数) | 2011年03月(築14年) | 方位 | 南東 |
| 建物構造 | RC(鉄筋コンクリート) | 所在階/階建 | ***/7階建 |
| 総戸数 | 68戸 | 駐車場 | 無 |
| 保険料 | *** | 契約期間 | *** |
| 引渡 | 即時 | ||
| 現況(予定年月) | 空室 | ||
| 管理 | 管理人/巡回、 | ||
| 設備・条件 | BSアンテナ、CSアンテナ、オートロック、TVドアホン、防犯カメラ、ディンプルキー、宅配ボックス、駐輪場、エレベータ、デザイナーズ、システムキッチン、バス・トイレ別、温水洗浄便座、浴室乾燥機、追い焚き、室内洗濯機置き場、フローリング、24時間換気システム、エアコン、バルコニー、分譲賃貸、日当たり良好 | ||
| 備考 | 保証人代行:必須/初回保証料:賃料+管理費の30%~40% | ||
| 周辺施設 |
ローソンストア100武蔵新田店(距離:302m) まいばすけっと矢口2丁目店(距離:340m) |
||
| 物件番号 | 16782 | 取引態様 | 代理 |
| 情報更新日 | *** | ||
| 次回更新予定日 | 情報更新日より15日以内 | ||

















COMMENTS FROM STAFFルーブル下丸子【満室】の
担当者コメント
敷金ゼロで初期費用が抑えられます/クレジット決済可能/分譲賃貸マンション/オートロックシステムでセキュリティバッチリ/いつでも荷物が受け取れる宅配ボックス/広々2DKのお部屋/追い焚き風呂/浴室乾燥機つきで雨の日でも洗濯可/独立洗面台つき/周辺施設充実