グラントゥルース井荻 2階 | 1K | 8.9万円
| 賃料 | 8.9万円 | 管理費・共益費 | 0.5万円 |
|---|---|---|---|
| 敷金/礼金 | なし / 1ヶ月 | 専有面積 | 22.51m² |
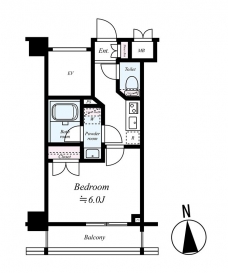
| 間取り | 1K | 階建 | 2階/8階建 |
グラントゥルース井荻の詳細
| 賃料 | 8.9万円 | 管理費・共益費 | 0.5万円 |
|---|---|---|---|
| 敷金/保証金 | なし / | 礼金/償却・敷引 | 1ヶ月 / |
| 更新料 | 1ヶ月 | フリーレント | なし |
| その他費用 |
鍵交換費用:33,000円 クリーニング代:70,000円 抗菌代:16,500円 リノシークラブ:22,000円 24時間サポート:16,500円 |
||
| 所在地 | 東京都杉並区下井草5丁目 | ||
| 交通 |
西武鉄道新宿線「井荻」 徒歩2分 西武鉄道新宿線「下井草」 徒歩12分 西武鉄道新宿線「上井草」 徒歩16分 |
||
| 間取り | 1K | 間取り内訳 |
洋室 6 畳 |
| 専有面積 | 22.51m² | バルコニー面積 | |
| 築年月(築年数) | 2006年03月(築19年) | 方位 | 南 |
| 建物構造 | RC(鉄筋コンクリート) | 所在階/階建 | 2階/8階建 |
| 総戸数 | 34戸 | 駐車場 | |
| 保険料 | 要 | 契約期間 | 2年間 |
| 引渡 | 2026年03月 | ||
| 現況(予定年月) | 居住中 | ||
| 管理 | |||
| 設備・条件 | 光ファイバー、オートロック、TVドアホン、防犯カメラ、宅配ボックス、駐輪場、エレベータ、2階以上、システムキッチン、バス・トイレ別、温水洗浄便座、浴室乾燥機、室内洗濯機置き場、フローリング、24時間換気システム、エアコン、バルコニー、分譲賃貸、敷金なし | ||
| 備考 | 保証人代行:可/総賃料の50% | ||
| 周辺施設 |
まいばすけっと 井荻駅東店(距離:64m) ピーコックストア 井荻店(距離:194m) セブンイレブン 杉並井荻店(距離:157m) ファミリーマート 上井草一丁目店(距離:396m) マツモトキヨシ 井荻駅前店(距離:173m) |
||
| 物件番号 | 66848 | 取引態様 | 仲介 |
| 情報更新日 | 2026年01月18日 | ||
| 次回更新予定日 | 情報更新日より15日以内 | ||




















COMMENTS FROM STAFFグラントゥルース井荻の
担当者コメント
東京の1人暮らしはアセットナビへ!自社ブランドマンションをはじめ、賃貸物件を数多くご紹介可能です。こちらの物件は、分譲賃貸マンションで設備が充実しております。オートロックシステムでセキュリティもバッチリです。