本情報は過去に掲載された物件の参考情報です。 最新の物件情報など詳細につきましてはお気軽にお問合せください。
| 賃料 | *** | 管理費・共益費 | *** |
|---|---|---|---|
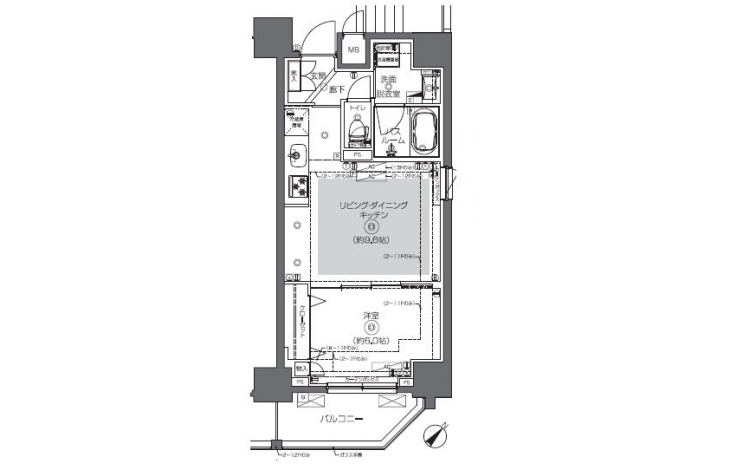
| 敷金/礼金 | *** / *** | 専有面積 | 41.04m² |
| 間取り | 1LDK | 階建 | ***/13階建 |
【間取り】
【その他】
【キッチン】
【リビング】
【風呂】
【ベッドルーム】
【玄関】
【バルコニー・ベランダ】
【収納】
【洗面所】
【トイレ】
【その他設備】
【収納】
【その他設備】
【その他設備】
【外観】
【セキュリティ】
【セキュリティ】
【エントランス】
【その他共有部分】
【コンビ二】ローソン 馬喰町駅前店 距離:183m
【コンビ二】セブンイレブン 馬喰町駅前店 距離:190m
【スーパー】マルマンストア 日本橋馬喰町店 距離:208m
【コンビ二】ファミリーマート 小伝馬町鞍掛橋店 距離:210m
【ドラックストア】スギ薬局 日本橋横山町店 距離:229m
【コンビ二】ファミリーマート 東神田二丁目店 距離:344m
GoogleMapを読み込んでいます。
35.693916 139.781443
ZOOM日本橋馬喰町【満室】の詳細
| 賃料 | *** | 管理費・共益費 | *** |
|---|---|---|---|
| 敷金/保証金 | *** / *** | 礼金/償却・敷引 | *** / *** |
| 更新料 | *** | フリーレント | *** |
| その他費用 | *** | ||
| 所在地 | 東京都千代田区東神田1丁目 | ||
| 交通 |
総武本線「馬喰町」 徒歩2分 都営新宿線「馬喰横山」 徒歩3分 都営浅草線「東日本橋」 徒歩3分 |
||
| 間取り | 1LDK | 間取り内訳 |
LDK 9.6 畳 洋室 6 畳 |
| 専有面積 | 41.04m² | バルコニー面積 | 5.25m² |
| 築年月(築年数) | 2019年01月(築7年) | 方位 | 南東 |
| 建物構造 | RC(鉄筋コンクリート) | 所在階/階建 | ***/13階建 |
| 総戸数 | 54戸 | 駐車場 | |
| 保険料 | *** | 契約期間 | *** |
| 引渡 | 即時 | ||
| 現況(予定年月) | 空室 | ||
| 管理 | 管理人/巡回、 | ||
| 設備・条件 | オートロック、TVドアホン、防犯カメラ、ディンプルキー、ダブルロックキー、宅配ボックス、バイク置き場、駐輪場、エレベータ、デザイナーズ、2階以上、最上階、角部屋、システムキッチン、バス・トイレ別、温水洗浄便座、浴室乾燥機、追い焚き、室内洗濯機置き場、フローリング、エアコン、床暖房、バルコニー、分譲賃貸、礼金なし、敷金なし、ペット相談 | ||
| 備考 | 保証人代行:必須/トーシンライフサポート、オリコフォレントインシュア/保証料:初回=賃料等×50%、月額=賃料等×1% | ||
| 周辺施設 |
ローソン 馬喰町駅前店(距離:183m) セブンイレブン 馬喰町駅前店(距離:190m) マルマンストア 日本橋馬喰町店(距離:208m) |
||
| 物件番号 | 39045 | 取引態様 | 仲介 |
| 情報更新日 | *** | ||
| 次回更新予定日 | 情報更新日より15日以内 | ||














COMMENTS FROM STAFFZOOM日本橋馬喰町【満室】の
担当者コメント
東京の1人暮らしはアセットナビへ!自社ブランドマンションをはじめ、賃貸物件を数多くご紹介可能です。こちらの物件は、分譲賃貸マンションで設備が充実しております。オートロックシステムでセキュリティもバッチリです。