ブランノアール北赤羽【満室】 *** | 1K | ***
本情報は過去に掲載された物件の参考情報です。 最新の物件情報など詳細につきましてはお気軽にお問合せください。
| 賃料 | *** | 管理費・共益費 | *** |
|---|---|---|---|
| 敷金/礼金 | *** / *** | 専有面積 | 24.04m² |
| 間取り | 1K | 階建 | ***/7階建 |
ブランノアール北赤羽【満室】の詳細
| 賃料 | *** | 管理費・共益費 | *** |
|---|---|---|---|
| 敷金/保証金 | *** / *** | 礼金/償却・敷引 | *** / *** |
| 更新料 | *** | フリーレント | *** |
| その他費用 | *** | ||
| 所在地 | 東京都北区赤羽北2丁目 | ||
| 交通 |
埼京線「北赤羽」 徒歩1分 京浜東北・根岸線「赤羽」 徒歩23分 東京地下鉄南北線「赤羽岩淵」 徒歩20分 |
||
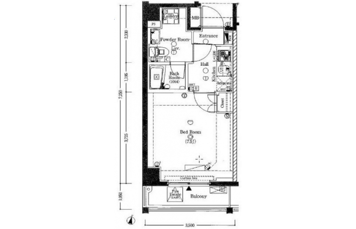
| 間取り | 1K | 間取り内訳 |
洋室 7.5 畳 |
| 専有面積 | 24.04m² | バルコニー面積 | 3.50m² |
| 築年月(築年数) | 2012年09月(築13年) | 方位 | 南 |
| 建物構造 | RC(鉄筋コンクリート) | 所在階/階建 | ***/7階建 |
| 総戸数 | 47戸 | 駐車場 | 無 |
| 保険料 | *** | 契約期間 | *** |
| 引渡 | 2023年06月 | ||
| 現況(予定年月) | 空室 | ||
| 管理 | 管理人/巡回、 | ||
| 設備・条件 | BSアンテナ、CSアンテナ、CATV、オートロック、TVドアホン、防犯カメラ、宅配ボックス、エレベータ、システムキッチン、バス・トイレ別、温水洗浄便座、浴室乾燥機、室内洗濯機置き場、フローリング、エアコン、バルコニー、分譲賃貸、敷金なし、ペット相談、ルームシェア相談 | ||
| 備考 | 保証人代行:必須/指定保証会社:初回契約時:50%、[JRAG:1万円/年(月330円)] [カーサ:月1%] [エポス:月1.3%] | ||
| 周辺施設 | コモディイイダ(距離:840m) | ||
| 物件番号 | 37880 | 取引態様 | 仲介 |
| 情報更新日 | *** | ||
| 次回更新予定日 | 情報更新日より15日以内 | ||


















COMMENTS FROM STAFFブランノアール北赤羽【満室】の
担当者コメント
東京の1人暮らしはアセットナビへ!自社ブランドマンションをはじめ、賃貸物件を数多くご紹介可能です。こちらの物件は、分譲賃貸マンションで設備が充実しております。オートロックシステムでセキュリティもバッチリです。