本情報は過去に掲載された物件の参考情報です。 最新の物件情報など詳細につきましてはお気軽にお問合せください。
| 賃料 | *** | 管理費・共益費 | *** |
|---|---|---|---|
| 敷金/礼金 | *** / *** | 専有面積 | 25.60m² |
| 間取り | 1K | 階建 | ***/10階建 |
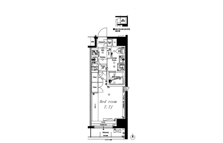
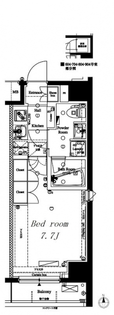
【間取り】
【リビング】
【キッチン】
【トイレ】
【風呂】
【その他部屋・スペース】
【玄関】
【収納】
【洗面所】
【バルコニー・ベランダ】
【その他設備】
【その他】
【その他】
【その他】
【外観】建物のクオリティーや、価値のある立地が備えたステイタスにふさわしい気品を象徴するエントランスデザイン。
【エントランス】機能美にも優れた高級感あふれる面材をふんだんに使用、プライベートエリアへのプロローグを上品に演出
【その他共有部分】都会の喧騒とは無縁の静寂な世界と誘われます。
【エントランス】照明の光に包まれた美しくエレガントな雰囲気
【エントランスロゴ】格あるライフステージに相応しい外観文字。
【外観】シックなカラーイメージが高級感溢れるファザードを演出します。
【セキュリティー】エントランスの集合玄関機のカメラにより訪問者を映像で確認ができます。解除表示機能等で居住者の安全と安心を確保します。
【メールボックス】個人の郵便物を受け取るためのメールボックス
【宅配ボックス】不在時に届いた宅配便を本人の代わりに受け取り、24時間いつでも取り出せる宅配ボックス。
【駐輪場】29台分の自転車置き場を設けました。ショッピングや近隣へのお出かけなどに便利です。
【防犯カメラ】居住者の安全を守るため、監視カメラを設置しています。トラブルの発生を未然に抑止し、 心理的な効果にもつながり、高い安全性を確保します。
【エレベーター】
GoogleMapを読み込んでいます。
35.672898 139.779596
アークマーク八丁堀アジールコート【満室】の詳細
| 賃料 | *** | 管理費・共益費 | *** |
|---|---|---|---|
| 敷金/保証金 | *** / *** | 礼金/償却・敷引 | *** / *** |
| 更新料 | *** | フリーレント | *** |
| その他費用 | *** | ||
| 所在地 | 東京都中央区湊1丁目 | ||
| 交通 |
東京地下鉄日比谷線「八丁堀(東京)」 徒歩4分 東京地下鉄有楽町線「新富町(東京)」 徒歩9分 東京地下鉄東西線「茅場町」 徒歩10分 |
||
| 間取り | 1K | 間取り内訳 |
洋室 7.7 畳 K 2 畳 |
| 専有面積 | 25.60m² | バルコニー面積 | |
| 築年月(築年数) | 2023年02月(築2年) | 方位 | 南 |
| 建物構造 | RC(鉄筋コンクリート) | 所在階/階建 | ***/10階建 |
| 総戸数 | 34戸 | 駐車場 | |
| 保険料 | *** | 契約期間 | *** |
| 引渡 | 2025年04月 | ||
| 現況(予定年月) | 賃貸中 | ||
| 管理 | |||
| 設備・条件 | BSアンテナ、CSアンテナ、光ファイバー、オートロック、防犯カメラ、ディンプルキー、ダブルロックキー、宅配ボックス、駐輪場、エレベータ、デザイナーズ、ARKMARK(アークマーク)シリーズ、2階以上、角部屋、南向き部屋、システムキッチン、バス・トイレ別、温水洗浄便座、浴室乾燥機、室内洗濯機置き場、フローリング、24時間換気システム、エアコン、バルコニー、分譲賃貸、礼金なし、敷金なし、ペット相談 | ||
| 備考 | 保証人代行:必須/エポス、クレディセゾン、新日本信用保証、ルームバンクインシュア、ジェイリース、家賃総額の30%~ | ||
| 周辺施設 |
中央区立中央小学校190m、中央区佃中学校900m、コンビニ距離150m、スーパー距離190m、病院距離640m マルエツ プチ 八丁堀四丁目店(距離:333m) mini(ミニ) ピアゴ 新川2丁目店(距離:260m) ファミリーマート 入船一丁目店(距離:132m) セブンイレブン 中央区湊1丁目店(距離:188m) スギドラッグ 八丁堀店(距離:624m) |
||
| 物件番号 | 33599 | 取引態様 | 仲介 |
| 情報更新日 | *** | ||
| 次回更新予定日 | 情報更新日より15日以内 | ||

















COMMENTS FROM STAFFアークマーク八丁堀アジールコート【満室】の
担当者コメント
東京の1人暮らしはアセットナビへ!自社ブランドマンションをはじめ、賃貸物件を数多くご紹介可能です。こちらの物件は、当社グループ会社管理物件につき仲介手数料半額でご紹介中です。敷金礼金ゼロで初期費用が抑えられます。