本情報は過去に掲載された物件の参考情報です。 最新の物件情報など詳細につきましてはお気軽にお問合せください。
| 賃料 | *** | 管理費・共益費 | *** |
|---|---|---|---|
| 敷金/礼金 | *** / *** | 専有面積 | 25.81m² |
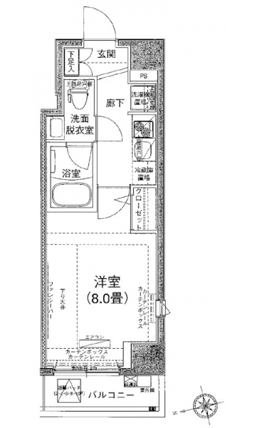
| 間取り | 1K | 階建 | ***/10階建 |
【間取り】
【トイレ】
【キッチン】
【リビング】
【風呂】
【ベッドルーム】
【玄関】
【収納】
【洗面所】
【その他設備】
【その他部屋・スペース】
【その他】
【キッチン】
【風呂】
【外観】
【エントランス】
【ロビー】
【その他共有部分】
【外観】
【スーパー】まいばすけっと 富岡八幡店 距離:104m
【ドラックストア】スギドラッグ 江東富岡店 距離:92m
【スーパー】大黒屋 門前仲町店 距離:133m
【コンビ二】セブンイレブン 江東冬木店 距離:200m
【コンビ二】ファミリーマート 深川門前仲町店 距離:356m
GoogleMapを読み込んでいます。
35.671571 139.801259
アイル東京深川【満室】の詳細
| 賃料 | *** | 管理費・共益費 | *** |
|---|---|---|---|
| 敷金/保証金 | *** / *** | 礼金/償却・敷引 | *** / *** |
| 更新料 | *** | フリーレント | *** |
| その他費用 | *** | ||
| 所在地 | 東京都江東区富岡2丁目 | ||
| 交通 |
東京地下鉄東西線「門前仲町」 徒歩6分 東京地下鉄東西線「木場」 徒歩11分 都営大江戸線「清澄白河」 徒歩19分 |
||
| 間取り | 1K | 間取り内訳 |
K 2 畳 洋室 8 畳 |
| 専有面積 | 25.81m² | バルコニー面積 | 3.35m² |
| 築年月(築年数) | 2014年01月(築12年) | 方位 | 北西 |
| 建物構造 | RC(鉄筋コンクリート) | 所在階/階建 | ***/10階建 |
| 総戸数 | 45戸 | 駐車場 | |
| 保険料 | *** | 契約期間 | *** |
| 引渡 | 2025年08月 | ||
| 現況(予定年月) | 居住中 | ||
| 管理 | 管理人/巡回、 | ||
| 設備・条件 | BSアンテナ、CSアンテナ、オートロック、TVドアホン、防犯カメラ、ディンプルキー、ダブルロックキー、宅配ボックス、エレベータ、デザイナーズ、2階以上、最上階、角部屋、システムキッチン、バス・トイレ別、温水洗浄便座、浴室乾燥機、室内洗濯機置き場、洗濯機置き場有、フローリング、24時間換気システム、エアコン、バルコニー、分譲賃貸、日当たり良好 | ||
| 備考 | 保証人代行:必須/賃料総額の40%~ | ||
| 周辺施設 |
まいばすけっと 富岡八幡店(距離:104m) スギドラッグ 江東富岡店(距離:92m) 大黒屋 門前仲町店(距離:133m) セブンイレブン 江東冬木店(距離:200m) ファミリーマート 深川門前仲町店(距離:356m) |
||
| 物件番号 | 32125 | 取引態様 | 仲介 |
| 情報更新日 | *** | ||
| 次回更新予定日 | 情報更新日より15日以内 | ||




















COMMENTS FROM STAFFアイル東京深川【満室】の
担当者コメント
東京の1人暮らしはアセットナビへ!自社ブランドマンションをはじめ、賃貸物件を数多くご紹介可能です。こちらの物件は、分譲賃貸マンションで設備が充実しております。オートロックシステムでセキュリティもバッチリです。