ルーブル西早稲田弐番館【満室】 *** | 1K | ***
本情報は過去に掲載された物件の参考情報です。 最新の物件情報など詳細につきましてはお気軽にお問合せください。
| 賃料 | *** | 管理費・共益費 | *** |
|---|---|---|---|
| 敷金/礼金 | *** / *** | 専有面積 | 20.52m² |
| 間取り | 1K | 階建 | ***/8階建 |
ルーブル西早稲田弐番館【満室】の詳細
| 賃料 | *** | 管理費・共益費 | *** |
|---|---|---|---|
| 敷金/保証金 | *** / *** | 礼金/償却・敷引 | *** / *** |
| 更新料 | *** | フリーレント | *** |
| その他費用 | *** | ||
| 所在地 | 東京都豊島区高田2丁目 | ||
| 交通 |
東京地下鉄副都心線「雑司が谷」 徒歩7分 山手線「高田馬場」 徒歩14分 都営荒川線「面影橋」 徒歩3分 |
||
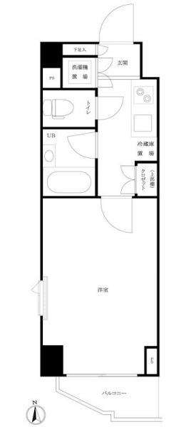
| 間取り | 1K | 間取り内訳 |
洋室 6 畳 4 階 K 2 畳 4 階 |
| 専有面積 | 20.52m² | バルコニー面積 | |
| 築年月(築年数) | 2014年03月(築11年) | 方位 | 南 |
| 建物構造 | RC(鉄筋コンクリート) | 所在階/階建 | ***/8階建 |
| 総戸数 | 63戸 | 駐車場 | |
| 保険料 | *** | 契約期間 | *** |
| 引渡 | 2025年06月 | ||
| 現況(予定年月) | 空室 | ||
| 管理 | 管理人/巡回、管理会社/(株)TFDコミュニティ | ||
| 設備・条件 | BSアンテナ、CSアンテナ、光ファイバー、オートロック、TVドアホン、ディンプルキー、ダブルロックキー、宅配ボックス、駐輪場、エレベータ、2階以上、システムキッチン、バス・トイレ別、温水洗浄便座、浴室乾燥機、室内洗濯機置き場、フローリング、24時間換気システム、エアコン、分譲賃貸、敷金なし | ||
| 備考 | 保証人代行:必須/初回保証料30%(家賃+管理費)年間保証料10,000円 ※学生初回保証料9,000円 | ||
| 周辺施設 |
よしや 目白高田店(距離:234m) ココカラファイン 目白高田店(距離:234m) ファミリーマート 新宿戸塚警察署前店(距離:466m) セブンイレブン 豊島高田2丁目店(距離:359m) miniピアゴ雑司が谷2丁目店(距離:478m) スーパーマーケットリコス 雑司が谷2丁目店(距離:483m) |
||
| 物件番号 | 60020 | 取引態様 | 仲介 |
| 情報更新日 | *** | ||
| 次回更新予定日 | 情報更新日より15日以内 | ||





















COMMENTS FROM STAFFルーブル西早稲田弐番館【満室】の
担当者コメント
東京の1人暮らしはアセットナビへ!自社ブランドマンションをはじめ、賃貸物件を数多くご紹介可能です。こちらの物件は、分譲賃貸マンションで設備が充実しております。オートロックシステムでセキュリティもバッチリです。