メインステージ白金II【満室】 *** | 1K | ***
本情報は過去に掲載された物件の参考情報です。 最新の物件情報など詳細につきましてはお気軽にお問合せください。
| 賃料 | *** | 管理費・共益費 | *** |
|---|---|---|---|
| 敷金/礼金 | *** / *** | 専有面積 | 25.63m² |
| 間取り | 1K | 階建 | ***/10階建 |
メインステージ白金II【満室】の詳細
| 賃料 | *** | 管理費・共益費 | *** |
|---|---|---|---|
| 敷金/保証金 | *** / *** | 礼金/償却・敷引 | *** / *** |
| 更新料 | *** | フリーレント | *** |
| その他費用 | *** | ||
| 所在地 | 東京都港区白金1丁目 | ||
| 交通 |
東京地下鉄南北線「白金高輪」 徒歩5分 都営浅草線「泉岳寺」 徒歩17分 都営三田線「白金台」 徒歩17分 |
||
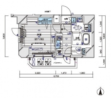
| 間取り | 1K | 間取り内訳 |
K 2 畳 洋室 7.2 畳 |
| 専有面積 | 25.63m² | バルコニー面積 | |
| 築年月(築年数) | 2017年10月(築8年) | 方位 | 南 |
| 建物構造 | RC(鉄筋コンクリート) | 所在階/階建 | ***/10階建 |
| 総戸数 | 29戸 | 駐車場 | |
| 保険料 | *** | 契約期間 | *** |
| 引渡 | 2023年04月 | ||
| 現況(予定年月) | 居住中 | ||
| 管理 | |||
| 設備・条件 | BSアンテナ、CSアンテナ、CATV、光ファイバー、オートロック、TVドアホン、防犯カメラ、宅配ボックス、エレベータ、2階以上、角部屋、システムキッチン、バス・トイレ別、温水洗浄便座、浴室乾燥機、室内洗濯機置き場、フローリング、24時間換気システム、エアコン、バルコニー、分譲賃貸 | ||
| 備考 | 保証人代行:必須/賃料総額の50%~ | ||
| 周辺施設 |
クイーンズ伊勢丹白金高輪店近隣(距離:381m) 肉のハナマサ 南麻布店近隣(距離:537m) ローソン 港白金店近隣(距離:197m) ファミリーマート 港区白金プラザ店近隣(距離:372m) トモズ 白金プラザ店近隣(距離:361m) |
||
| 物件番号 | 35048 | 取引態様 | 仲介 |
| 情報更新日 | *** | ||
| 次回更新予定日 | 情報更新日より15日以内 | ||

















COMMENTS FROM STAFFメインステージ白金II【満室】の
担当者コメント
東京の1人暮らしはアセットナビへ!自社ブランドマンションをはじめ、賃貸物件を数多くご紹介可能です。こちらの物件は、分譲賃貸マンションで設備が充実しております。オートロックシステムでセキュリティもバッチリです。