メインステージ門前仲町【満室】 *** | 1K | ***
本情報は過去に掲載された物件の参考情報です。 最新の物件情報など詳細につきましてはお気軽にお問合せください。
| 賃料 | *** | 管理費・共益費 | *** |
|---|---|---|---|
| 敷金/礼金 | *** / *** | 専有面積 | 21.85m² |
| 間取り | 1K | 階建 | ***/13階建 |
メインステージ門前仲町【満室】の詳細
| 賃料 | *** | 管理費・共益費 | *** |
|---|---|---|---|
| 敷金/保証金 | *** / *** | 礼金/償却・敷引 | *** / *** |
| 更新料 | *** | フリーレント | *** |
| その他費用 | *** | ||
| 所在地 | 東京都江東区門前仲町1丁目 | ||
| 交通 |
東京地下鉄東西線「門前仲町」 徒歩3分 都営大江戸線「門前仲町」 徒歩4分 京葉線「越中島」 徒歩10分 |
||
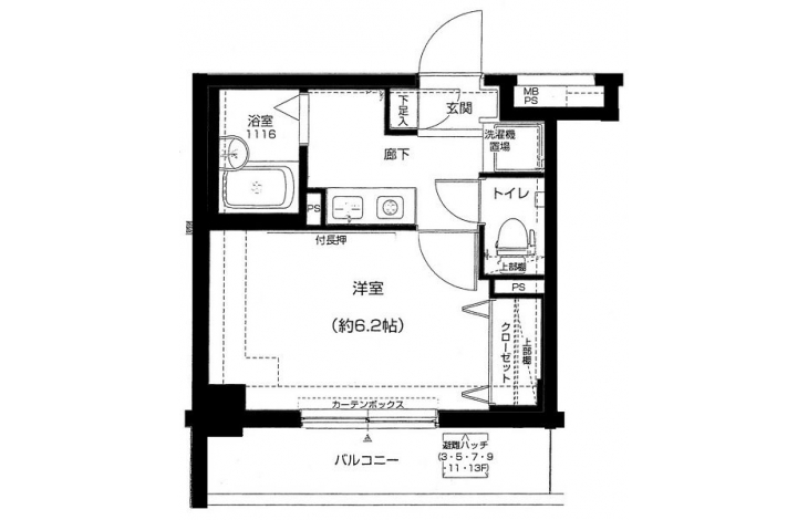
| 間取り | 1K | 間取り内訳 |
K 2 畳 洋室 6.2 畳 |
| 専有面積 | 21.85m² | バルコニー面積 | |
| 築年月(築年数) | 2003年05月(築22年) | 方位 | 南西 |
| 建物構造 | SRC(鉄骨鉄筋コンクリート) | 所在階/階建 | ***/13階建 |
| 総戸数 | 駐車場 | ||
| 保険料 | *** | 契約期間 | *** |
| 引渡 | 2025年05月 | ||
| 現況(予定年月) | 居住中 | ||
| 管理 | 管理人/巡回、 | ||
| 設備・条件 | オートロック、TVドアホン、防犯カメラ、宅配ボックス、駐輪場、エレベータ、2階以上、システムキッチン、バス・トイレ別、温水洗浄便座、浴室乾燥機、室内洗濯機置き場、洗濯機置き場有、フローリング、エアコン、バルコニー、分譲賃貸、ペット不可 | ||
| 備考 | 保証人代行:必須/賃料総額の50%~ | ||
| 周辺施設 |
ファミリーマート 門前仲町一丁目店(距離:14m) セブンイレブン 門前仲町駅西店(距離:134m) まいばすけっと 江東永代2丁目店(距離:341m) 赤札堂 深川店(距離:415m) くすりの福太郎門前仲町店(距離:186m) |
||
| 物件番号 | 58868 | 取引態様 | 仲介 |
| 情報更新日 | *** | ||
| 次回更新予定日 | 情報更新日より15日以内 | ||



















COMMENTS FROM STAFFメインステージ門前仲町【満室】の
担当者コメント
東京の1人暮らしはアセットナビへ!自社ブランドマンションをはじめ、賃貸物件を数多くご紹介可能です。こちらの物件は、分譲賃貸マンションで設備が充実しております。オートロックシステムでセキュリティもバッチリです。