メインステージ門前仲町【満室】 *** | 1K | ***
本情報は過去に掲載された物件の参考情報です。 最新の物件情報など詳細につきましてはお気軽にお問合せください。
| 賃料 | *** | 管理費・共益費 | *** |
|---|---|---|---|
| 敷金/礼金 | *** / *** | 専有面積 | 22.10m² |
| 間取り | 1K | 階建 | ***/13階建 |
メインステージ門前仲町【満室】の詳細
| 賃料 | *** | 管理費・共益費 | *** |
|---|---|---|---|
| 敷金/保証金 | *** / *** | 礼金/償却・敷引 | *** / *** |
| 更新料 | *** | フリーレント | *** |
| その他費用 | *** | ||
| 所在地 | 東京都江東区門前仲町1丁目 | ||
| 交通 |
東京地下鉄東西線「門前仲町」 徒歩2分 京葉線「越中島」 徒歩9分 東京地下鉄半蔵門線「清澄白河」 徒歩17分 |
||
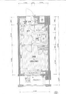
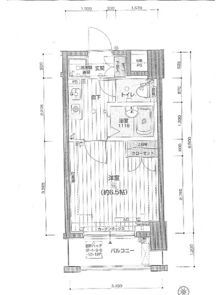
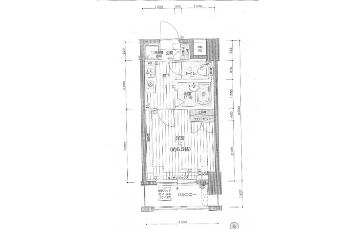
| 間取り | 1K | 間取り内訳 |
K 2 畳 洋室 6.5 畳 |
| 専有面積 | 22.10m² | バルコニー面積 | |
| 築年月(築年数) | 2003年05月(築22年) | 方位 | 北東 |
| 建物構造 | SRC(鉄骨鉄筋コンクリート) | 所在階/階建 | ***/13階建 |
| 総戸数 | 駐車場 | 無 | |
| 保険料 | *** | 契約期間 | *** |
| 引渡 | 即時 | ||
| 現況(予定年月) | 空室 | ||
| 管理 | 管理人/巡回、 | ||
| 設備・条件 | BSアンテナ、CSアンテナ、オートロック、TVドアホン、防犯カメラ、宅配ボックス、駐輪場、エレベータ、デザイナーズ、システムキッチン、バス・トイレ別、温水洗浄便座、浴室乾燥機、室内洗濯機置き場、フローリング、エアコン、バルコニー、分譲賃貸、敷金なし | ||
| 備考 | 保証人代行:必須/家賃等30%~ 詳細はお問い合わせください。 | ||
| 周辺施設 |
まいばすけっと富岡八幡店(距離:883m) ローソン永代橋店(距離:343m) アブアブ赤札堂深川店(距離:424m) まいばすけっと江東富岡1丁目店(距離:754m) |
||
| 物件番号 | 52122 | 取引態様 | 一般 |
| 情報更新日 | *** | ||
| 次回更新予定日 | 情報更新日より15日以内 | ||




















COMMENTS FROM STAFFメインステージ門前仲町【満室】の
担当者コメント
東京の1人暮らしはアセットナビへ!自社ブランドマンションをはじめ、賃貸物件を数多くご紹介可能です。こちらの物件は、分譲賃貸マンションで設備が充実しております。オートロックシステムでセキュリティもバッチリです。