本情報は過去に掲載された物件の参考情報です。 最新の物件情報など詳細につきましてはお気軽にお問合せください。
| 賃料 | *** | 管理費・共益費 | *** |
|---|---|---|---|
| 敷金/礼金 | *** / *** | 専有面積 | 21.94m² |
| 間取り | 1K | 階建 | ***/14階建 |
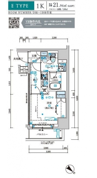
【間取り】
【キッチン】※別部屋参考画像
【リビング】※別部屋参考画像
【風呂】※別部屋参考画像
【ベッドルーム】※別部屋参考画像
【玄関】※別部屋参考画像
【収納】※別部屋参考画像
【トイレ】※別部屋参考画像
【洗面所】※別部屋参考画像
【その他】※別部屋参考画像
【その他部屋・スペース】
【その他】
【その他】
【外観】
【ドラックストア】ココカラファイン 新小岩店 距離:220m
【スーパー】まいばすけっと 新小岩ルミエール店 距離:263m
【コンビ二】セブンイレブン 葛飾新小岩1丁目店 距離:241m
【ドラックストア】馬場のくすりや仁成堂薬局新小岩支店 距離:339m
【コンビ二】セブンイレブン 新小岩ルミエール店 距離:349m
GoogleMapを読み込んでいます。
35.713187 139.863226
メインステージ新小岩【満室】の詳細
| 賃料 | *** | 管理費・共益費 | *** |
|---|---|---|---|
| 敷金/保証金 | *** / *** | 礼金/償却・敷引 | *** / *** |
| 更新料 | *** | フリーレント | *** |
| その他費用 | *** | ||
| 所在地 | 東京都葛飾区新小岩1丁目 | ||
| 交通 |
総武本線「新小岩」 徒歩10分 総武・中央緩行線「平井(東京)」 徒歩35分 総武・中央緩行線「小岩」 徒歩41分 |
||
| 間取り | 1K | 間取り内訳 |
洋室 5.7 畳 |
| 専有面積 | 21.94m² | バルコニー面積 | |
| 築年月(築年数) | 2022年11月(築3年) | 方位 | 北東 |
| 建物構造 | RC(鉄筋コンクリート) | 所在階/階建 | ***/14階建 |
| 総戸数 | 駐車場 | ||
| 保険料 | *** | 契約期間 | *** |
| 引渡 | 2025年08月 | ||
| 現況(予定年月) | 賃貸中 | ||
| 管理 | |||
| 設備・条件 | BSアンテナ、CSアンテナ、光ファイバー、オートロック、TVドアホン、防犯カメラ、ディンプルキー、ダブルロックキー、宅配ボックス、エレベータ、デザイナーズ、2階以上、システムキッチン、バス・トイレ別、温水洗浄便座、浴室乾燥機、室内洗濯機置き場、洗濯機置き場有、フローリング、24時間換気システム、エアコン、バルコニー、分譲賃貸、礼金なし、敷金なし、ペット相談 | ||
| 備考 | 保証人代行:必須/賃料総額の50%~ | ||
| 周辺施設 |
ココカラファイン 新小岩店(距離:220m) セブンイレブン 葛飾新小岩1丁目店(距離:241m) まいばすけっと 松島4丁目店(距離:444m) まいばすけっと 新小岩ルミエール店(距離:263m) セブンイレブン 新小岩ルミエール店(距離:349m) |
||
| 物件番号 | 57581 | 取引態様 | 仲介 |
| 情報更新日 | *** | ||
| 次回更新予定日 | 情報更新日より15日以内 | ||

















COMMENTS FROM STAFFメインステージ新小岩【満室】の
担当者コメント
東京の1人暮らしはアセットナビへ!自社ブランドマンションをはじめ、賃貸物件を数多くご紹介可能です。こちらの物件は、分譲賃貸マンションで設備が充実しております。オートロックシステムでセキュリティもバッチリです。