ランドステージ両国【満室】 *** | 1K | ***
本情報は過去に掲載された物件の参考情報です。 最新の物件情報など詳細につきましてはお気軽にお問合せください。
| 賃料 | *** | 管理費・共益費 | *** |
|---|---|---|---|
| 敷金/礼金 | *** / *** | 専有面積 | 26.84m² |
| 間取り | 1K | 階建 | ***/14階建(B1階) |
ランドステージ両国【満室】の詳細
| 賃料 | *** | 管理費・共益費 | *** |
|---|---|---|---|
| 敷金/保証金 | *** / *** | 礼金/償却・敷引 | *** / *** |
| 更新料 | *** | フリーレント | *** |
| その他費用 | *** | ||
| 所在地 | 東京都墨田区緑1丁目 | ||
| 交通 |
都営大江戸線「両国」 徒歩2分 総武・中央緩行線「両国」 徒歩8分 都営大江戸線「森下(東京)」 徒歩10分 |
||
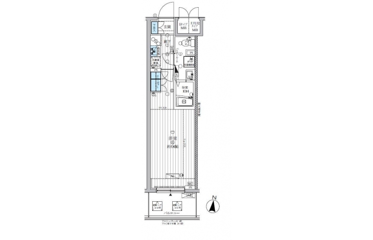
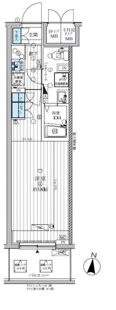
| 間取り | 1K | 間取り内訳 |
洋室 9.6 畳 |
| 専有面積 | 26.84m² | バルコニー面積 | |
| 築年月(築年数) | 2009年11月(築16年) | 方位 | 南 |
| 建物構造 | RC(鉄筋コンクリート) | 所在階/階建 | ***/14階建(B1階) |
| 総戸数 | 駐車場 | ||
| 保険料 | *** | 契約期間 | *** |
| 引渡 | 2025年04月 | ||
| 現況(予定年月) | 居住中 | ||
| 管理 | 管理人/巡回、 | ||
| 設備・条件 | BSアンテナ、CSアンテナ、光ファイバー、オートロック、TVドアホン、防犯カメラ、ディンプルキー、宅配ボックス、駐輪場、エレベータ、2階以上、システムキッチン、バス・トイレ別、温水洗浄便座、浴室乾燥機、室内洗濯機置き場、洗濯機置き場有、フローリング、24時間換気システム、エアコン、バルコニー、分譲賃貸、敷金なし、ペット相談 | ||
| 備考 | 保証人代行:必須/家賃総額の50%~ | ||
| 周辺施設 |
まいばすけっと 両国駅東店(距離:210m) まいばすけっと 両国駅東口店(距離:595m) ローソン 墨田緑一丁目店(距離:114m) ファミリーマート 亀沢一丁目店(距離:120m) どらっぐぱぱす 両国店(距離:531m) |
||
| 物件番号 | 59159 | 取引態様 | 仲介 |
| 情報更新日 | *** | ||
| 次回更新予定日 | 情報更新日より15日以内 | ||




















COMMENTS FROM STAFFランドステージ両国【満室】の
担当者コメント
東京の1人暮らしはアセットナビへ!自社ブランドマンションをはじめ、賃貸物件を数多くご紹介可能です。こちらの物件は、分譲賃貸マンションで設備が充実しております。オートロックシステムでセキュリティもバッチリです。