フェニックス新宿夏目坂【満室】 *** | 1K | ***
本情報は過去に掲載された物件の参考情報です。 最新の物件情報など詳細につきましてはお気軽にお問合せください。
| 賃料 | *** | 管理費・共益費 | *** |
|---|---|---|---|
| 敷金/礼金 | *** / *** | 専有面積 | 32.20m² |
| 間取り | 1K | 階建 | ***/10階建 |
フェニックス新宿夏目坂【満室】の詳細
| 賃料 | *** | 管理費・共益費 | *** |
|---|---|---|---|
| 敷金/保証金 | *** / *** | 礼金/償却・敷引 | *** / *** |
| 更新料 | *** | フリーレント | *** |
| その他費用 | *** | ||
| 所在地 | 東京都新宿区原町3丁目 | ||
| 交通 |
都営大江戸線「若松河田」 徒歩4分 都営大江戸線「牛込柳町」 徒歩5分 東京地下鉄東西線「早稲田」 徒歩12分 |
||
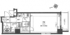
| 間取り | 1K | 間取り内訳 |
洋室 10.6 畳 7 階 |
| 専有面積 | 32.20m² | バルコニー面積 | 3.69m² |
| 築年月(築年数) | 2012年08月(築13年) | 方位 | 南 |
| 建物構造 | RC(鉄筋コンクリート) | 所在階/階建 | ***/10階建 |
| 総戸数 | 27戸 | 駐車場 | |
| 保険料 | *** | 契約期間 | *** |
| 引渡 | 即時 | ||
| 現況(予定年月) | 空室 | ||
| 管理 | 管理人/巡回、 | ||
| 設備・条件 | CATV、光ファイバー、オートロック、TVドアホン、防犯カメラ、ディンプルキー、ダブルロックキー、宅配ボックス、エレベータ、2階以上、角部屋、システムキッチン、バス・トイレ別、温水洗浄便座、浴室乾燥機、追い焚き、室内洗濯機置き場、フローリング、24時間換気システム、エアコン、ウォークインクローゼット、バルコニー、分譲賃貸 | ||
| 備考 | 保証人代行:必須/初回保証料=賃料等×50%(法人50%)、月額保証料=賃料等×1% | ||
| 周辺施設 |
まいばすけっと 新宿原町3丁目店(距離:8m) クリエイトSD(エス・ディー) 新宿若松町店(距離:140m) ナチュラルローソン 東京女子医大病院店(距離:223m) |
||
| 物件番号 | 30490 | 取引態様 | 仲介 |
| 情報更新日 | *** | ||
| 次回更新予定日 | 情報更新日より15日以内 | ||



















COMMENTS FROM STAFFフェニックス新宿夏目坂【満室】の
担当者コメント
東京の1人暮らしはアセットナビへ!自社ブランドマンションをはじめ、賃貸物件を数多くご紹介可能です。こちらの物件は、分譲賃貸マンションで設備が充実しております。オートロックシステムでセキュリティもバッチリです。