本情報は過去に掲載された物件の参考情報です。 最新の物件情報など詳細につきましてはお気軽にお問合せください。
| 賃料 | *** | 管理費・共益費 | *** |
|---|---|---|---|
| 敷金/礼金 | *** / *** | 専有面積 | 25.68m² |
| 間取り | 1K | 階建 | ***/9階建 |
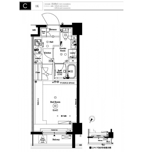
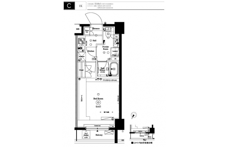
【間取り】間取図
【キッチン】キッチン
【リビング】居室
【風呂】バス
【ベッドルーム】寝室
【玄関】玄関
【バルコニー・ベランダ】バルコニー
【トイレ】トイレ
【洗面所】洗面所
【その他設備】設備
【収納】収納
【その他】内装
【キッチン】キッチン
【洗面所】洗面所
【収納】収納
【外観】街並みに調和するシックな色調でありながら新鮮で都会的な印象を与える洗練されたデザイン性がステイタスのあるライフステージを創出します。
【外観】エクセレントな立地にふさわしい瀟洒な外観デザイン、そして洗練されたファサードがハイクオリティ&ハイグレードなプライベート空間の集合体である事を如実に物語っています。
【外観】森鴎外や夏目漱石といった文豪達の旺盛な創作活動の拠点ともなった千駄木周辺エリアは、古き街並みの面影を残す散策スポット「谷根千」と称され人気の街。
【外観】街並みに調和するシックな色調でありながら新鮮で都会的な印象を与える洗練されたデザイン性がステイタスのあるライフステージを創出します。
【外観】モダンでスタイリッシュ、そして知的なファサード。
【エントランス】エレガントな雰囲気に包まれたエントランスホール。
【エントランス】洗練された外観デザインを象徴する品格あるエントランス。
【エントランス】建物の個性やクオリティー、さらにはブランド力のあるエリアのステイタスにふさわしいデザイン性をも象徴するのがエントランス。
【ロビー】エントランス内に歩みを進めた瞬間、都会の喧騒とは無縁の静寂の世界へと誘われます。
【ロビー】やわらかな照明の光につつまれた美しくエレガントな雰囲気が醸し出す、品格あるライフステージへのプロローグ。 ここから始まる新たな都市生活に素敵な彩りを添えています。
【ロビー】内外部の壁面には色合いや質感に優れた高級感あふれる画材をふんだんに使用、プライベートエリアへのプロローグを上品に、そしてドラマティックに演出します。
【オートロック】エントランスの集合玄関機のカメラにより訪問者を映像で確認出来ます。その他にも解錠表示機能等で居住者の安全と安心を確保します。
【宅配BOX】居住者は操作も簡単で24時間いつでも好きな時に、宅配業者を待つことなく、忙しいときやお出かけするときに宅配物を受け取ることが出来ます。
【防犯カメラ】居住者の安全を守るため、監視カメラをエレベーター内、エントランス、自転車置き場、避難通路など様々な場所に設置しています。トラブルの発生を未然に抑止し、心理的な効果にもつながり、高い安全性を確保します。
【駐輪場】自転車置き場を設けました。ショッピングや近隣へのお出かけなどに便利です。 ※一部高さ制限があり。
【バイク置き場】バイク置き場を設けました。ショッピングや近隣へのお出かけなどに便利です。 ※一部大きさなど制限があります。
【メールボックス】個人の郵便物を受け取るためのメールボックス。
アクサス文京千駄木【満室】の詳細
| 賃料 | *** | 管理費・共益費 | *** |
|---|---|---|---|
| 敷金/保証金 | *** / *** | 礼金/償却・敷引 | *** / *** |
| 更新料 | *** | フリーレント | *** |
| その他費用 | *** | ||
| 所在地 | 東京都文京区千駄木1丁目 | ||
| 交通 |
東京地下鉄南北線「本駒込」 徒歩5分 東京地下鉄千代田線「千駄木」 徒歩7分 都営三田線「白山(東京)」 徒歩8分 |
||
| 間取り | 1K | 間取り内訳 |
洋室 8.4 畳 |
| 専有面積 | 25.68m² | バルコニー面積 | |
| 築年月(築年数) | 2018年10月(築7年) | 方位 | 北西 |
| 建物構造 | RC(鉄筋コンクリート) | 所在階/階建 | ***/9階建 |
| 総戸数 | 40戸 | 駐車場 | 無 |
| 保険料 | *** | 契約期間 | *** |
| 引渡 | 2025年07月 | ||
| 現況(予定年月) | 賃貸中 | ||
| 管理 | 管理人/巡回、 | ||
| 設備・条件 | BSアンテナ、CSアンテナ、光ファイバー、オートロック、防犯カメラ、ディンプルキー、ダブルロックキー、宅配ボックス、バイク置き場、駐輪場、エレベータ、デザイナーズ、AXAS(アクサス)シリーズ、2階以上、システムキッチン、バス・トイレ別、温水洗浄便座、浴室乾燥機、室内洗濯機置き場、フローリング、24時間換気システム、エアコン、バルコニー、分譲賃貸、礼金なし、敷金なし、ペット相談 | ||
| 備考 | 保証人代行:必須/エポス、クレディセゾン、新日本信用保証、ルームバンクインシュア、ジェイリース、家賃総額の30%~ | ||
| 周辺施設 |
コープ白山店(距離:511m) まいばすけっと文京東大前店(距離:739m) セブンイレブン文京向丘2丁目店(距離:713m) まいばすけっと本駒込3丁目店(距離:578m) ファミリーマート向丘二丁目北店(距離:234m) |
||
| 物件番号 | 45189 | 取引態様 | 仲介 |
| 情報更新日 | *** | ||
| 次回更新予定日 | 情報更新日より15日以内 | ||
















COMMENTS FROM STAFFアクサス文京千駄木【満室】の
担当者コメント
東京の1人暮らしはアセットナビへ!自社ブランドマンションをはじめ、賃貸物件を数多くご紹介可能です。こちらの物件は、当社グループ会社管理物件につき仲介手数料半額でご紹介中です。敷金礼金ゼロで初期費用が抑えられます。