メインステージ亀戸【満室】 *** | 1K | ***
本情報は過去に掲載された物件の参考情報です。 最新の物件情報など詳細につきましてはお気軽にお問合せください。
| 賃料 | *** | 管理費・共益費 | *** |
|---|---|---|---|
| 敷金/礼金 | *** / *** | 専有面積 | 23.15m² |
| 間取り | 1K | 階建 | ***/11階建 |
メインステージ亀戸【満室】の詳細
| 賃料 | *** | 管理費・共益費 | *** |
|---|---|---|---|
| 敷金/保証金 | *** / *** | 礼金/償却・敷引 | *** / *** |
| 更新料 | *** | フリーレント | *** |
| その他費用 | *** | ||
| 所在地 | 東京都江東区亀戸8丁目 | ||
| 交通 |
東武鉄道亀戸線「亀戸水神」 徒歩4分 総武・中央緩行線「亀戸」 徒歩13分 総武・中央緩行線「平井(東京)」 徒歩12分 |
||
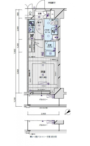
| 間取り | 1K | 間取り内訳 |
K 2 畳 洋室 7.2 畳 |
| 専有面積 | 23.15m² | バルコニー面積 | |
| 築年月(築年数) | 2010年10月(築15年) | 方位 | 北西 |
| 建物構造 | RC(鉄筋コンクリート) | 所在階/階建 | ***/11階建 |
| 総戸数 | 駐車場 | 無 | |
| 保険料 | *** | 契約期間 | *** |
| 引渡 | 即時 | ||
| 現況(予定年月) | 空室 | ||
| 管理 | 管理人/巡回、 | ||
| 設備・条件 | BSアンテナ、CSアンテナ、CATV、光ファイバー、オートロック、TVドアホン、防犯カメラ、ディンプルキー、宅配ボックス、駐輪場、エレベータ、制震構造、デザイナーズ、2階以上、システムキッチン、バス・トイレ別、温水洗浄便座、浴室乾燥機、室内洗濯機置き場、フローリング、24時間換気システム、エアコン、バルコニー、分譲賃貸、礼金なし、敷金なし、ペット相談 | ||
| 備考 | 保証人代行:必須/総賃料の50%~ | ||
| 周辺施設 |
ローソン亀戸水神店(距離:385m) まいばすけっと亀戸駅東口店(距離:887m) サンタウン立花(距離:669m) まいばすけっと江東亀戸5丁目店(距離:854m) まいばすけっと亀戸駅東口店(距離:887m) |
||
| 物件番号 | 19573 | 取引態様 | 仲介 |
| 情報更新日 | *** | ||
| 次回更新予定日 | 情報更新日より15日以内 | ||




















COMMENTS FROM STAFFメインステージ亀戸【満室】の
担当者コメント
東京の1人暮らしはアセットナビへ!自社ブランドマンションをはじめ、賃貸物件を数多くご紹介可能です。クリスマスキャンペーン実施中!ご来店のお客様・先着30名にハーゲンダッツギフト券をプレゼント。詳しくはスタッフまでお問い合わせください。