メインステージ元住吉【満室】 *** | 1K | ***
本情報は過去に掲載された物件の参考情報です。 最新の物件情報など詳細につきましてはお気軽にお問合せください。
| 賃料 | *** | 管理費・共益費 | *** |
|---|---|---|---|
| 敷金/礼金 | *** / *** | 専有面積 | 22.50m² |
| 間取り | 1K | 階建 | ***/7階建 |
メインステージ元住吉【満室】の詳細
| 賃料 | *** | 管理費・共益費 | *** |
|---|---|---|---|
| 敷金/保証金 | *** / *** | 礼金/償却・敷引 | *** / *** |
| 更新料 | *** | フリーレント | *** |
| その他費用 | *** | ||
| 所在地 | 神奈川県川崎市中原区苅宿 | ||
| 交通 |
東急東横線「元住吉」 徒歩13分 東急目黒線「元住吉」 徒歩13分 東急東横線「武蔵小杉」 徒歩23分 |
||
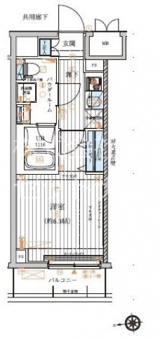
| 間取り | 1K | 間取り内訳 |
洋室 6.3 畳 K 2 畳 |
| 専有面積 | 22.50m² | バルコニー面積 | |
| 築年月(築年数) | 2017年10月(築8年) | 方位 | 北西 |
| 建物構造 | RC(鉄筋コンクリート) | 所在階/階建 | ***/7階建 |
| 総戸数 | 駐車場 | ||
| 保険料 | *** | 契約期間 | *** |
| 引渡 | 即時 | ||
| 現況(予定年月) | 空室 | ||
| 管理 | |||
| 設備・条件 | オートロック、TVドアホン、防犯カメラ、宅配ボックス、エレベータ、デザイナーズ、2階以上、システムキッチン、バス・トイレ別、温水洗浄便座、浴室乾燥機、追い焚き、室内洗濯機置き場、洗濯機置き場有、フローリング、24時間換気システム、エアコン、分譲賃貸 | ||
| 備考 | 保証人代行:必須/初回:家賃総額の50%~ | ||
| 周辺施設 |
鈴木薬局(距離:132m) セブンイレブン 苅宿店(距離:128m) まいばすけっと 苅宿店(距離:111m) ローソン 木月住吉店(距離:344m) ファミリーマート 川崎苅宿店(距離:282m) マックスバリュエクスプレス木月住吉店(距離:549m) |
||
| 物件番号 | 27536 | 取引態様 | 仲介 |
| 情報更新日 | *** | ||
| 次回更新予定日 | 情報更新日より15日以内 | ||














COMMENTS FROM STAFFメインステージ元住吉【満室】の
担当者コメント
東京の1人暮らしはアセットナビへ!自社ブランドマンションをはじめ、賃貸物件を数多くご紹介可能です。こちらの物件は、分譲賃貸マンションで設備が充実しております。オートロックシステムでセキュリティもバッチリです。快適な独立洗面台つき。