メインステージ立川VI【満室】 *** | 1K | ***
本情報は過去に掲載された物件の参考情報です。 最新の物件情報など詳細につきましてはお気軽にお問合せください。
| 賃料 | *** | 管理費・共益費 | *** |
|---|---|---|---|
| 敷金/礼金 | *** / *** | 専有面積 | 20.52m² |
| 間取り | 1K | 階建 | ***/11階建 |
メインステージ立川VI【満室】の詳細
| 賃料 | *** | 管理費・共益費 | *** |
|---|---|---|---|
| 敷金/保証金 | *** / *** | 礼金/償却・敷引 | *** / *** |
| 更新料 | *** | フリーレント | *** |
| その他費用 | *** | ||
| 所在地 | 東京都立川市錦町3丁目 | ||
| 交通 |
中央本線「立川」 徒歩9分 南武線「西国立」 徒歩8分 南武線「立川」 徒歩9分 |
||
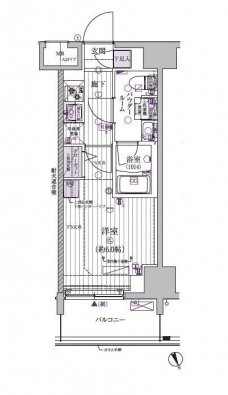
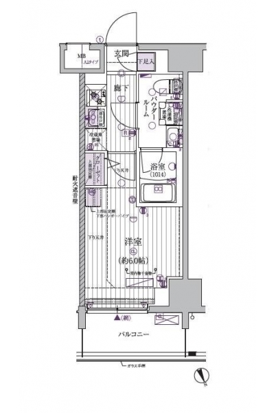
| 間取り | 1K | 間取り内訳 |
洋室 6 畳 |
| 専有面積 | 20.52m² | バルコニー面積 | |
| 築年月(築年数) | 2022年07月(築3年) | 方位 | 北東 |
| 建物構造 | RC(鉄筋コンクリート) | 所在階/階建 | ***/11階建 |
| 総戸数 | 51戸 | 駐車場 | |
| 保険料 | *** | 契約期間 | *** |
| 引渡 | 2025年12月 | ||
| 現況(予定年月) | 賃貸中 | ||
| 管理 | |||
| 設備・条件 | BSアンテナ、CSアンテナ、光ファイバー、オートロック、TVドアホン、防犯カメラ、ディンプルキー、ダブルロックキー、宅配ボックス、駐輪場、エレベータ、2階以上、システムキッチン、バス・トイレ別、温水洗浄便座、浴室乾燥機、室内洗濯機置き場、洗濯機置き場有、フローリング、24時間換気システム、エアコン、バルコニー、分譲賃貸、礼金なし、敷金なし、ペット相談 | ||
| 備考 | 保証人代行:必須/家賃総額の50%~ | ||
| 周辺施設 |
北野エ-ス グランデュオ立川店(距離:565m) 東急ストア 立川駅南口店(距離:631m) セブンイレブン 立川通り店(距離:31m) ファミリーマート 立川錦町店(距離:406m) スギドラッグ 立川錦町店(距離:524m) |
||
| 物件番号 | 65387 | 取引態様 | 仲介 |
| 情報更新日 | *** | ||
| 次回更新予定日 | 情報更新日より15日以内 | ||


















COMMENTS FROM STAFFメインステージ立川VI【満室】の
担当者コメント
東京の1人暮らしはアセットナビへ!自社ブランドマンションをはじめ、賃貸物件を数多くご紹介可能です。3,000円キャッシュバックキャンペーン実施中。オンライン接客のお客様にAmazonギフト券3,000円分をプレゼント。詳しくはスタッフまでお問い合わせください。