レヴィーガ大山【満室】 *** | 1LDK | ***
本情報は過去に掲載された物件の参考情報です。 最新の物件情報など詳細につきましてはお気軽にお問合せください。
| 賃料 | *** | 管理費・共益費 | *** |
|---|---|---|---|
| 敷金/礼金 | *** / *** | 専有面積 | 40.60m² |
| 間取り | 1LDK | 階建 | ***/5階建 |
レヴィーガ大山【満室】の詳細
| 賃料 | *** | 管理費・共益費 | *** |
|---|---|---|---|
| 敷金/保証金 | *** / *** | 礼金/償却・敷引 | *** / *** |
| 更新料 | *** | フリーレント | *** |
| その他費用 | *** | ||
| 所在地 | 東京都板橋区中丸町 | ||
| 交通 |
東武鉄道東上線「大山(東京)」 徒歩7分 東京地下鉄副都心線「要町」 徒歩19分 東京地下鉄有楽町線「要町」 徒歩19分 |
||
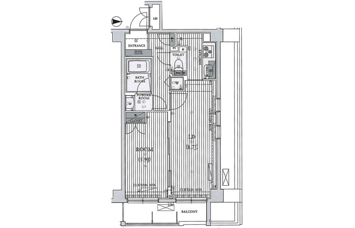
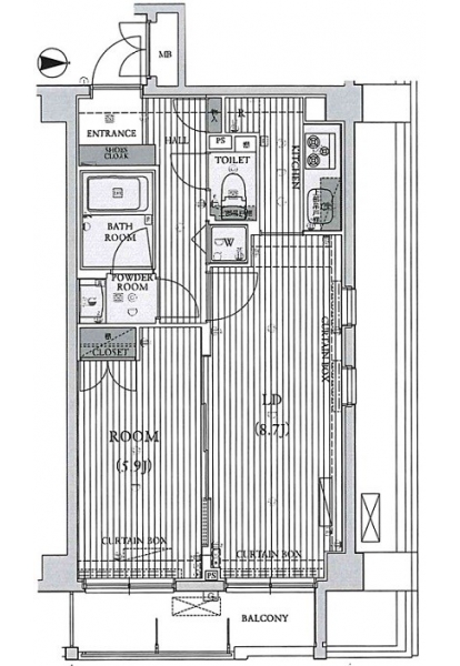
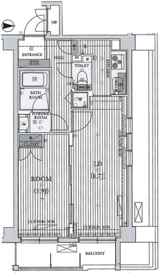
| 間取り | 1LDK | 間取り内訳 |
LD 8.7 畳 K 2 畳 洋室 5.9 畳 |
| 専有面積 | 40.60m² | バルコニー面積 | |
| 築年月(築年数) | 2008年02月(築17年) | 方位 | 東 |
| 建物構造 | RC(鉄筋コンクリート) | 所在階/階建 | ***/5階建 |
| 総戸数 | 駐車場 | ||
| 保険料 | *** | 契約期間 | *** |
| 引渡 | 即時 | ||
| 現況(予定年月) | 空室 | ||
| 管理 | |||
| 設備・条件 | BSアンテナ、CSアンテナ、CATV、オートロック、TVドアホン、防犯カメラ、宅配ボックス、駐輪場、エレベータ、2階以上、角部屋、システムキッチン、バス・トイレ別、浴室乾燥機、室内洗濯機置き場、フローリング、24時間換気システム、エアコン、バルコニー、分譲賃貸 | ||
| 備考 | 保証人代行:必須/総賃料の55% | ||
| 周辺施設 |
ビッグ・エー 板橋中丸店(距離:108m) セブンイレブン 板橋大山店(距離:318m) |
||
| 物件番号 | 25416 | 取引態様 | 仲介 |
| 情報更新日 | *** | ||
| 次回更新予定日 | 情報更新日より15日以内 | ||




















COMMENTS FROM STAFFレヴィーガ大山【満室】の
担当者コメント
東京の1人暮らしはアセットナビへ!自社ブランドマンションをはじめ、賃貸物件を数多くご紹介可能です。こちらの物件は、分譲賃貸マンションで設備が充実しております。オートロックシステムでセキュリティもバッチリです。