ルーブル目黒不動前【満室】 *** | 1K | ***
本情報は過去に掲載された物件の参考情報です。 最新の物件情報など詳細につきましてはお気軽にお問合せください。
| 賃料 | *** | 管理費・共益費 | *** |
|---|---|---|---|
| 敷金/礼金 | *** / *** | 専有面積 | 20.58m² |
| 間取り | 1K | 階建 | ***/7階建 |
ルーブル目黒不動前【満室】の詳細
| 賃料 | *** | 管理費・共益費 | *** |
|---|---|---|---|
| 敷金/保証金 | *** / *** | 礼金/償却・敷引 | *** / *** |
| 更新料 | *** | フリーレント | *** |
| その他費用 | *** | ||
| 所在地 | 東京都品川区荏原1丁目 | ||
| 交通 |
東急目黒線「不動前」 徒歩9分 都営浅草線「戸越」 徒歩11分 東急池上線「戸越銀座」 徒歩10分 |
||
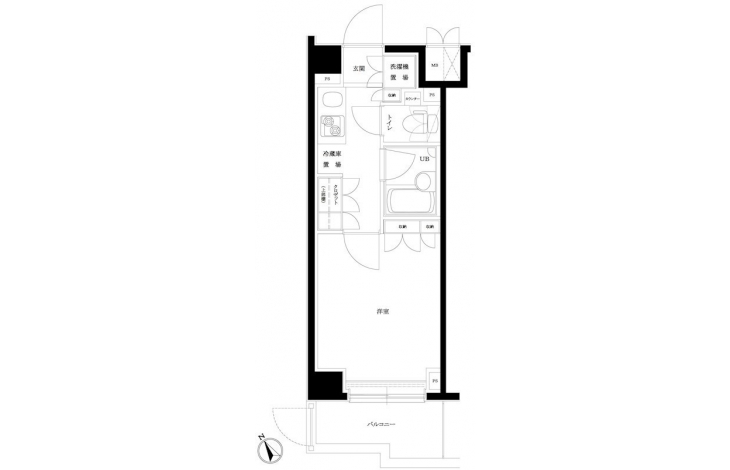
| 間取り | 1K | 間取り内訳 |
K 2.5 畳 洋室 6 畳 |
| 専有面積 | 20.58m² | バルコニー面積 | |
| 築年月(築年数) | 2016年03月(築9年) | 方位 | 北東 |
| 建物構造 | RC(鉄筋コンクリート) | 所在階/階建 | ***/7階建 |
| 総戸数 | 84戸 | 駐車場 | 無 |
| 保険料 | *** | 契約期間 | *** |
| 引渡 | 即時 | ||
| 現況(予定年月) | 空室 | ||
| 管理 | 管理人/巡回、 | ||
| 設備・条件 | BSアンテナ、CSアンテナ、CATV、光ファイバー、オートロック、TVドアホン、ディンプルキー、ダブルロックキー、宅配ボックス、駐輪場、エレベータ、2階以上、システムキッチン、バス・トイレ別、温水洗浄便座、浴室乾燥機、室内洗濯機置き場、フローリング、24時間換気システム、エアコン、バルコニー、敷金なし | ||
| 備考 | 保証人代行:必須/賃料総額の30%~ | ||
| 周辺施設 |
まいばすけっと西五反田6丁目店(距離:199m) 不動前東急ストア(距離:784m) ライフ大崎百反通店(距離:649m) ファミリーマート西五反田六丁目店(距離:453m) ナチュラルローソン西五反田八丁目店(距離:940m) ライフ武蔵小山店(距離:809m) |
||
| 物件番号 | 48291 | 取引態様 | 仲介 |
| 情報更新日 | *** | ||
| 次回更新予定日 | 情報更新日より15日以内 | ||



















COMMENTS FROM STAFFルーブル目黒不動前【満室】の
担当者コメント
東京の1人暮らしはアセットナビへ!自社ブランドマンションをはじめ、賃貸物件を数多くご紹介可能です。こちらの物件は、分譲賃貸マンションで設備が充実しております。オートロックシステムでセキュリティもバッチリです。