メインステージ西荻窪駅前ソレイユ【満室】 *** | 1K | ***
本情報は過去に掲載された物件の参考情報です。 最新の物件情報など詳細につきましてはお気軽にお問合せください。
| 賃料 | *** | 管理費・共益費 | *** |
|---|---|---|---|
| 敷金/礼金 | *** / *** | 専有面積 | 25.60m² |
| 間取り | 1K | 階建 | ***/12階建 |
メインステージ西荻窪駅前ソレイユ【満室】の詳細
| 賃料 | *** | 管理費・共益費 | *** |
|---|---|---|---|
| 敷金/保証金 | *** / *** | 礼金/償却・敷引 | *** / *** |
| 更新料 | *** | フリーレント | *** |
| その他費用 | *** | ||
| 所在地 | 東京都杉並区西荻南3丁目 | ||
| 交通 |
総武・中央緩行線「西荻窪」 徒歩1分 京王電鉄井の頭線「久我山」 徒歩26分 京王電鉄井の頭線「三鷹台」 徒歩27分 |
||
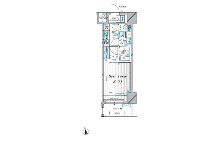
| 間取り | 1K | 間取り内訳 |
洋室 8.2 畳 |
| 専有面積 | 25.60m² | バルコニー面積 | |
| 築年月(築年数) | 2013年02月(築12年) | 方位 | 南西 |
| 建物構造 | RC(鉄筋コンクリート) | 所在階/階建 | ***/12階建 |
| 総戸数 | 38戸 | 駐車場 | |
| 保険料 | *** | 契約期間 | *** |
| 引渡 | 2023年09月 | ||
| 現況(予定年月) | 賃貸中 | ||
| 管理 | 管理人/巡回、 | ||
| 設備・条件 | BSアンテナ、CSアンテナ、光ファイバー、オートロック、TVドアホン、防犯カメラ、宅配ボックス、バイク置き場、駐輪場、エレベータ、デザイナーズ、2階以上、システムキッチン、バス・トイレ別、温水洗浄便座、浴室乾燥機、室内洗濯機置き場、フローリング、24時間換気システム、エアコン、バルコニー、分譲賃貸、日当たり良好、敷金なし、ペット相談 | ||
| 備考 | 保証人代行:必須/クレディセゾン、家賃総額の50%~ | ||
| 周辺施設 |
サミットストア 西荻窪駅南店(距離:123m) 西友 西荻窪店(距離:193m) セブンイレブン 西荻窪駅北口店(距離:199m) ローソン 西荻窪駅北店(距離:179m) ココカラファイン 西荻窪店(距離:82m) |
||
| 物件番号 | 40311 | 取引態様 | 仲介 |
| 情報更新日 | *** | ||
| 次回更新予定日 | 情報更新日より15日以内 | ||




















COMMENTS FROM STAFFメインステージ西荻窪駅前ソレイユ【満室】の
担当者コメント
東京の1人暮らしはアセットナビへ!自社ブランドマンションをはじめ、賃貸物件を数多くご紹介可能です。こちらの物件は、分譲賃貸マンションで設備が充実しております。オートロックシステムでセキュリティもバッチリです。快適な独立洗面台つき。いつでも荷物が受け取れる宅配ボックス。お手入れらくらく温水洗浄便座。雨の日でも洗濯物が干せる浴室乾燥機つき。