本情報は過去に掲載された物件の参考情報です。 最新の物件情報など詳細につきましてはお気軽にお問合せください。
| 賃料 | *** | 管理費・共益費 | *** |
|---|---|---|---|
| 敷金/礼金 | *** / *** | 専有面積 | 25.42m² |
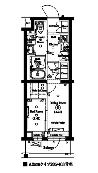
| 間取り | 1DK | 階建 | ***/4階建 |
【間取り】
【収納】
【キッチン】
【リビング】
【風呂】
【その他部屋・スペース】
【玄関】
【バルコニー・ベランダ】
【洗面所】
【トイレ】
【その他設備】
【その他】
【外観】建物のクオリティーや、価値のある立地が備えたステイタスにふさわしい気品を象徴するエントランスデザイン。
【エントランス】内部外の壁面には色合いや質感に優れた高級感のある面材をふんだんに使用、プライベートエリアへのプロローグを上品に、そしてドラマティックに演出。
【ロビー】エントランス内に歩み進めた週間、都会の喧噪とは無縁の静寂の世界へと誘われます。
【セキュリティ】やわらかな照明の光に包まれた美しくエレガントな雰囲気が醸し出す、品格あるライフステージへのプロローグ。
【その他共有部分】イメージ図です
【ホームセンター】Olympic(オリンピック) 中落合店 距離:309m
【コンビ二】セブンイレブン 新宿中落合3丁目店 距離:244m
【スーパー】オーケー下落合店 距離:558m
【スーパー】まいばすけっと 南長崎2丁目店 距離:486m
【ドラックストア】どらっぐぱぱす 南長崎店 距離:405m
【駐輪場】自転車置き場を設けました。ショッピングや近隣へのお出かけなどに便利です。
【オートロック】エントランスの集合玄関機のカメラにより訪問者を映像で確認出来ます。その他にも解錠表示機能等で居住者の安全と安心を確保します。
【エントランス】建物の個性やクオリティー、さらにはブランド力のあるエリアのステイタスにふさわしいデザイン性をも象徴するのがエントランス。
【エントランスホール】エレガントな雰囲気に包まれたエントランスホール。
【宅配ボックス&メールボックス】個人の郵便物を受け取るためのメールボックス。不在時に届いた宅配便を本人の代わりに受け取り、24時間いつでも取り出せる宅配ボックス。2つの住宅設備を一体化させ、美しいデザインを実現させました。
GoogleMapを読み込んでいます。
35.720813 139.692250
アークマーク新宿下落合【満室】の詳細
| 賃料 | *** | 管理費・共益費 | *** |
|---|---|---|---|
| 敷金/保証金 | *** / *** | 礼金/償却・敷引 | *** / *** |
| 更新料 | *** | フリーレント | *** |
| その他費用 | *** | ||
| 所在地 | 東京都新宿区中落合2丁目 | ||
| 交通 |
西武鉄道新宿線「下落合」 徒歩10分 西武池袋・豊島線「椎名町」 徒歩10分 都営大江戸線「中井」 徒歩13分 |
||
| 間取り | 1DK | 間取り内訳 |
洋室 2.4 畳 D 4.7 畳 |
| 専有面積 | 25.42m² | バルコニー面積 | 3.72m² |
| 築年月(築年数) | 2022年03月(築3年) | 方位 | 西 |
| 建物構造 | RC(鉄筋コンクリート) | 所在階/階建 | ***/4階建 |
| 総戸数 | 34戸 | 駐車場 | 無 |
| 保険料 | *** | 契約期間 | *** |
| 引渡 | 2023年10月 | ||
| 現況(予定年月) | 賃貸中 | ||
| 管理 | 管理人/巡回、管理会社/株式会社アセットコミュニティ | ||
| 設備・条件 | BSアンテナ、CSアンテナ、光ファイバー、オートロック、TVドアホン、防犯カメラ、ディンプルキー、ダブルロックキー、宅配ボックス、バイク置き場、駐輪場、エレベータ、デザイナーズ、ARKMARK(アークマーク)シリーズ、2階以上、システムキッチン、バス・トイレ別、温水洗浄便座、浴室乾燥機、室内洗濯機置き場、フローリング、24時間換気システム、エアコン、ウォークインクローゼット、バルコニー、分譲賃貸、礼金なし、敷金なし、ペット相談 | ||
| 備考 | 保証人代行:必須/エポス、クレディセゾン、新日本信用保証、ルームバンクインシュア 家賃総額の30%~ | ||
| 周辺施設 |
Olympic(オリンピック) 中落合店(距離:309m) セブンイレブン 新宿中落合3丁目店(距離:244m) オーケー下落合店(距離:558m) まいばすけっと 南長崎2丁目店(距離:486m) どらっぐぱぱす 南長崎店(距離:405m) |
||
| 物件番号 | 41847 | 取引態様 | 仲介 |
| 情報更新日 | *** | ||
| 次回更新予定日 | 情報更新日より15日以内 | ||




















COMMENTS FROM STAFFアークマーク新宿下落合【満室】の
担当者コメント
東京の1人暮らしはアセットナビへ!自社ブランドマンションをはじめ、賃貸物件を数多くご紹介可能です。こちらの物件は、当社グループ会社管理物件につき仲介手数料半額でご紹介中です。