本情報は過去に掲載された物件の参考情報です。 最新の物件情報など詳細につきましてはお気軽にお問合せください。
| 賃料 | *** | 管理費・共益費 | *** |
|---|---|---|---|
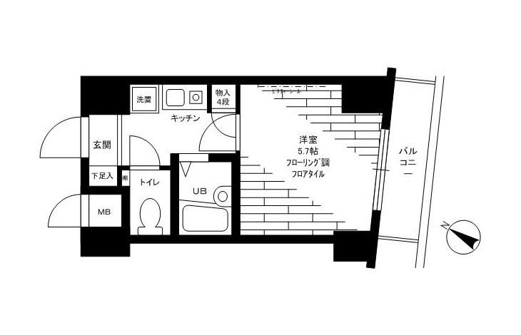
| 敷金/礼金 | *** / *** | 専有面積 | 19.06m² |
| 間取り | 1K | 階建 | ***/8階建(B1階) |
【間取り】
【トイレ】
【キッチン】
【リビング】
【風呂】
【ベッドルーム】
【玄関】
【洗面所】
【収納】
【その他】
【その他】
【外観】
【エントランス】
【その他共有部分】
【セキュリティ】
【外観】
【スーパー】maruetsu(マルエツ) プチ 千石店 距離:84m
【コンビ二】セブンイレブン 豊島南大塚1丁目南店 距離:644m
【スーパー】ローソンストア100 LS文京千石四丁目店 距離:567m
【スーパー】ローソンストア100 LS文京千石四丁目店 距離:567m
【ドラックストア】どらっぐぱぱす 巣鴨店 距離:862m
GoogleMapを読み込んでいます。
35.725697 139.740384
ステージファースト千石【満室】の詳細
| 賃料 | *** | 管理費・共益費 | *** |
|---|---|---|---|
| 敷金/保証金 | *** / *** | 礼金/償却・敷引 | *** / *** |
| 更新料 | *** | フリーレント | *** |
| その他費用 | *** | ||
| 所在地 | 東京都文京区千石3丁目 | ||
| 交通 |
都営三田線「千石」 徒歩6分 山手線「巣鴨」 徒歩14分 東京地下鉄丸ノ内線「新大塚」 徒歩15分 |
||
| 間取り | 1K | 間取り内訳 |
洋室 5.7 畳 K 1.5 畳 |
| 専有面積 | 19.06m² | バルコニー面積 | 3.15m² |
| 築年月(築年数) | 2000年10月(築25年) | 方位 | 南 |
| 建物構造 | RC(鉄筋コンクリート) | 所在階/階建 | ***/8階建(B1階) |
| 総戸数 | 駐車場 | ||
| 保険料 | *** | 契約期間 | *** |
| 引渡 | 即時 | ||
| 現況(予定年月) | 空室 | ||
| 管理 | 管理人/巡回、管理会社/日本ハウズィング株式会社 アーバン住宅営業部 | ||
| 設備・条件 | BSアンテナ、オートロック、宅配ボックス、駐輪場、エレベータ、2階以上、バス・トイレ別、温水洗浄便座、室内洗濯機置き場、フローリング、冷房、エアコン、バルコニー、分譲賃貸 | ||
| 備考 | 保証人代行:必須/月額費用の40%、1年毎に更新保証料10,000円がかかります。(GTN使用時100%) | ||
| 周辺施設 |
maruetsu(マルエツ) プチ 千石店(距離:84m) セブンイレブン 豊島南大塚1丁目南店(距離:644m) ローソンストア100 LS文京千石四丁目店(距離:567m) コープみらい 氷川下店(距離:714m) ファミリーマート 本駒込二丁目店(距離:760m) どらっぐぱぱす 巣鴨店(距離:862m) |
||
| 物件番号 | 26512 | 取引態様 | 仲介 |
| 情報更新日 | *** | ||
| 次回更新予定日 | 情報更新日より15日以内 | ||


















COMMENTS FROM STAFFステージファースト千石【満室】の
担当者コメント
東京の1人暮らしはアセットナビへ!自社ブランドマンションをはじめ、賃貸物件を数多くご紹介可能です。こちらの物件は、分譲賃貸マンションで設備が充実しております。オートロックシステムでセキュリティもバッチリです。